Detailed Property Information

Building Summary

Data last updated on: 1/1/0001     Ownership current as of: 11/15/2025     Tax Year: 2025
REID 6897072689000

PIN # 6897-07-2689

Location Address Property Description
2808 Bobby LN LO:014 BL:5371
   
Property Owner Owner's Mailing Address
MOORE, ADAM B;MOORE, ANDREA WHITE
2808 BOBBY LN
KERNERSVILLE NC 27284
Parcel
Buildings
Misc Improvements
Land
Deeds
Notes
Sales
Photos
Tax Bill
Map
Building Location Address
2808 Bobby LN
Building Description
SINGLE-FAMILY
Card   of  1
Bldg Type RESIDENTIAL
Units 0
Living Area (SQFT) 1479
Number of Stories 1.00
Style RANCH
Foundation MASONRY
Frame MASONRY
Exterior BRICK
Const Type
Heating Heat Pump
Air Cond CENTRAL
Plumbing Baths (Full):   2
Baths (Half):   0
Extra Fixtures:   0
Total Plumbing Fixtures:   6 
Bedrooms 3
Floor CARPET
Roof Cover Asphalt Shingle
Roof Type GABLE
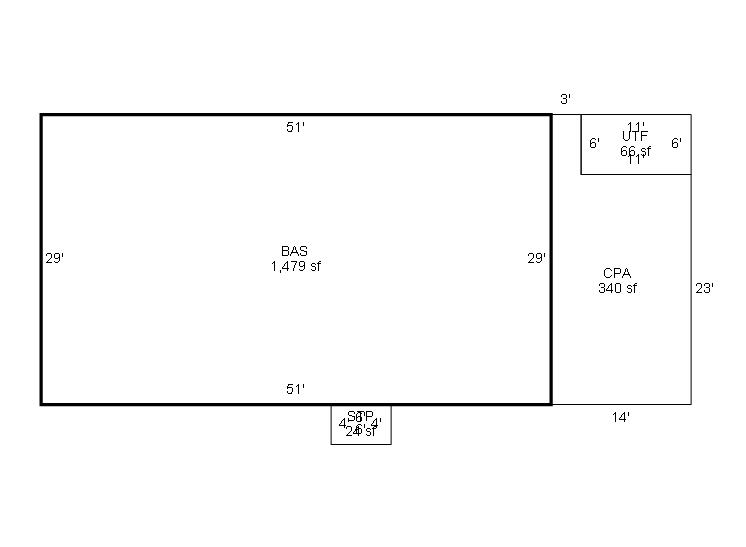
Main Body (SQFT) 1479
Year Built 1973
Additions 3
Effective Year 2010
Remodeled 0
Interior Adj.
Other Features
Building Total & Improvement Details

Grade C+5 105%
Percentage Complete 100
Total Adjusted Replacement Cost New $266,105
Physical Depreciation (% Bad) AVER 15%
Depreciated Value $226,189
Economic Depreciation (% Bad) 0
Functional Depreciation (% Bad) 0
Total Depreciated Value $226,189
Market Area Factor 1.03
Building Value $233,000
Misc Improvements Value $2,500
Total Improvement Value $235,500

Assessed Land Value $42,000
   
Assessed Total Value $277,500



Addition Summary 
StoryTypeCodeArea
1.00 STOOP STOO 24
1.00 CARPORT AVERAGE CARP 340
1.00 UTILITY FRAME UTIL 66
 
Other Improvements 
UnitsDescriptionItemCodeYear% BadValue
25x25 DIMENSIONS CPP-R 2014 44 2200
1 SIZE SHED-R 2017 53 300
 


Building Sketch
Photograph
Building Sketch Building Photo
(Click sketch for bigger image)