Detailed Property Information

Building Summary

Data last updated on: 1/1/0001     Ownership current as of: 4/8/2026     Tax Year: 2026
REID 6876964997000

PIN # 6876-96-4997

Location Address Property Description
804 Branchwood DR LO:010 BL:5394
   
Property Owner Owner's Mailing Address
PATA, LAUREN M;RIFFLE, TERRY L
804 BRANCHWOOD DR
KERNERSVILLE NC 27284
Parcel
Buildings
Misc Improvements
Land
Deeds
Notes
Sales
Photos
Tax Bill
Map
Building Location Address
804 Branchwood DR
Building Description
SINGLE-FAMILY
Card   of  1
Bldg Type RESIDENTIAL
Units 0
Living Area (SQFT) 1824
Number of Stories 1.00
Style RANCH
Foundation MASONRY
Frame MASONRY
Exterior BRICK
Const Type
Heating Electric Bb/Clg
Air Cond CENTRAL
Plumbing Baths (Full):   2
Baths (Half):   0
Extra Fixtures:   0
Total Plumbing Fixtures:   6 
Bedrooms 2
Floor CARPET-PLYWOOD
Roof Cover Asphalt Shingle
Roof Type GABLE
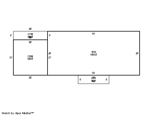
Main Body (SQFT) 1404
Year Built 1969
Additions 3
Effective Year 1996
Remodeled 2007
Interior Adj.
Other Features
Building Total & Improvement Details

Grade B-10 110%
Percentage Complete 100
Total Adjusted Replacement Cost New $329,146
Physical Depreciation (% Bad) AVER 29%
Depreciated Value $234,049
Economic Depreciation (% Bad) 0
Functional Depreciation (% Bad) 0
Total Depreciated Value $234,049
Market Area Factor 1.12
Building Value $262,100
Misc Improvements Value
Total Improvement Value $262,100

Assessed Land Value $50,600
   
Assessed Total Value $312,700



Addition Summary 
StoryTypeCodeArea
1.00 OPEN FRAME PORCH OPEN 90
1.00 UTILITY MASONRY UTIL 100
1.00 FRAME ADDITION FRAM 420
 
Other Improvements 
 


Building Sketch
Photograph
Building Sketch Building Photo
(Click sketch for bigger image)