Detailed Property Information

Building Summary

Data last updated on: 1/1/0001     Ownership current as of: 4/8/2026     Tax Year: 2026
REID 6876973084000

PIN # 6876-97-3084

Location Address Property Description
806 Branchwood DR LO:011 BL:5394
   
Property Owner Owner's Mailing Address
HATFIELD, ALLISON CALLAHAN;HATFIELD, JOSHUA WAYNE
806 BRANCHWOOD DR
KERNERSVILLE NC 27284
Parcel
Buildings
Misc Improvements
Land
Deeds
Notes
Sales
Photos
Tax Bill
Map
Building Location Address
806 Branchwood DR
Building Description
SINGLE-FAMILY
Card   of  1
Bldg Type RESIDENTIAL
Units 0
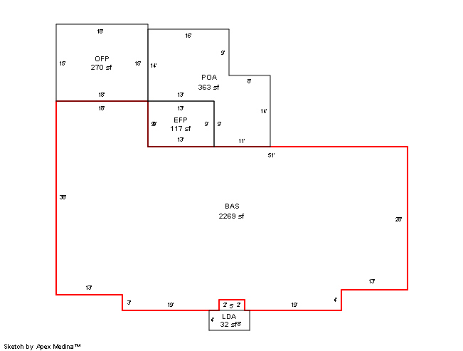
Living Area (SQFT) 2269
Number of Stories 1.00
Style RANCH
Foundation MASONRY
Frame MASONRY
Exterior BRICK
Const Type
Heating Heat Pump
Air Cond HEAT PUMP
Plumbing Baths (Full):   3
Baths (Half):   0
Extra Fixtures:   0
Total Plumbing Fixtures:   9 
Bedrooms 4
Floor CARPET-TILE
Roof Cover Asphalt Shingle
Roof Type GABLE
Main Body (SQFT) 2269
Year Built 1969
Additions 5
Effective Year 2003
Remodeled 0
Interior Adj.
Other Features
Building Total & Improvement Details

Grade B-10 110%
Percentage Complete 100
Total Adjusted Replacement Cost New $418,235
Physical Depreciation (% Bad) AVER 20%
Depreciated Value $334,588
Economic Depreciation (% Bad) 0
Functional Depreciation (% Bad) 0
Total Depreciated Value $334,588
Market Area Factor 1.12
Building Value $374,700
Misc Improvements Value $7,000
Total Improvement Value $381,700

Assessed Land Value $46,000
   
Assessed Total Value $427,700



Addition Summary 
StoryTypeCodeArea
1.00 OPEN FRAME PORCH OPEN 270
1.00 ENCLOSED FRAME PORCH ENCL 117
1.00 LANDING AVERAGE LAND 32
1.00 PATIO AVERAGE PATI 363
1.00 LANDING AVERAGE-R LAND 1
 
Other Improvements 
UnitsDescriptionItemCodeYear% BadValue
28x22 DIMENSIONS GAR/FRM/FLOOR/UNFIN-R 2005 44 6600
8x10 DIMENSIONS SHED-R 2014 73 400
 


Building Sketch
Photograph
Building Sketch Building Photo
(Click sketch for bigger image)