Detailed Property Information

Building Summary

Data last updated on: 1/1/0001     Ownership current as of: 4/8/2026     Tax Year: 2026
REID 6876864142000

PIN # 6876-86-4142

Location Address Property Description
224 Vandyke ST LO:085 BL:5394
   
Property Owner Owner's Mailing Address
PILEGGI, MAUREEN MCGOWAN
224 VANDYKE ST
KERNERSVILLE NC 27284
Parcel
Buildings
Misc Improvements
Land
Deeds
Notes
Sales
Photos
Tax Bill
Map
Building Location Address
224 Vandyke ST
Building Description
SINGLE-FAMILY
Card   of  1
Bldg Type RESIDENTIAL
Units 0
Living Area (SQFT) 1806
Number of Stories 1.00
Style RANCH
Foundation MASONRY
Frame MASONRY
Exterior BRICK
Const Type
Heating Heat Pump
Air Cond HEAT PUMP
Plumbing Baths (Full):   2
Baths (Half):   0
Extra Fixtures:   0
Total Plumbing Fixtures:   6 
Bedrooms 3
Floor CARPET-PLYWOOD
Roof Cover Asphalt Shingle
Roof Type GABLE
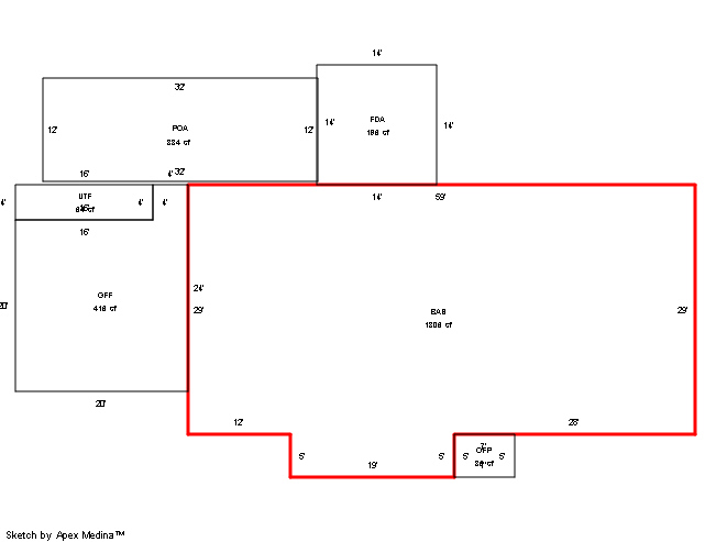
Main Body (SQFT) 1806
Year Built 1977
Additions 5
Effective Year 2000
Remodeled 0
Interior Adj.
Other Features
Building Total & Improvement Details

Grade B-10 110%
Percentage Complete 100
Total Adjusted Replacement Cost New $355,092
Physical Depreciation (% Bad) AVER 24%
Depreciated Value $270,060
Economic Depreciation (% Bad) 0
Functional Depreciation (% Bad) 0
Total Depreciated Value $270,060
Market Area Factor 1.12
Building Value $302,500
Misc Improvements Value
Total Improvement Value $302,500

Assessed Land Value $41,400
   
Assessed Total Value $343,900



Addition Summary 
StoryTypeCodeArea
1.00 FRAME DECK AVERAGE FRAM 196
1.00 UTILITY FRAME UTIL 64
1.00 OPEN FRAME PORCH OPEN 35
1.00 GAR/FRM/FLOOR/FIN GAR/ 416
1.00 PATIO AVERAGE PATI 384
 
Other Improvements 
UnitsDescriptionItemCodeYear% BadValue
1 SIZE SHED-R 2017 53
 


Building Sketch
Photograph
Building Sketch Building Photo
(Click sketch for bigger image)