Detailed Property Information

Building Summary

Data last updated on: 1/1/0001     Ownership current as of: 4/8/2026     Tax Year: 2026
REID 6876863255000

PIN # 6876-86-3255

Location Address Property Description
311 Irving Park DR LO:092 BL:5394
   
Property Owner Owner's Mailing Address
MAY, CATHY LYNN;THIELEN, MICHAEL ROBERT;THIELEN, KATELYN MAY
311 IRVING PARK DR
KERNERSVILLE NC 27284
Parcel
Buildings
Misc Improvements
Land
Deeds
Notes
Sales
Photos
Tax Bill
Map
Building Location Address
311 Irving Park DR
Building Description
SINGLE-FAMILY
Card   of  1
Bldg Type RESIDENTIAL
Units 0
Living Area (SQFT) 2355
Number of Stories 2.00
Style CONVENTIONAL
Foundation MASONRY
Frame MASONRY
Exterior BRICK
Const Type
Heating Heat Pump
Air Cond HEAT PUMP
Plumbing Baths (Full):   2
Baths (Half):   1
Extra Fixtures:   2
Total Plumbing Fixtures:   10 
Bedrooms 4
Floor CARPET-PLYWOOD
Roof Cover Asphalt Shingle
Roof Type GAMBREL
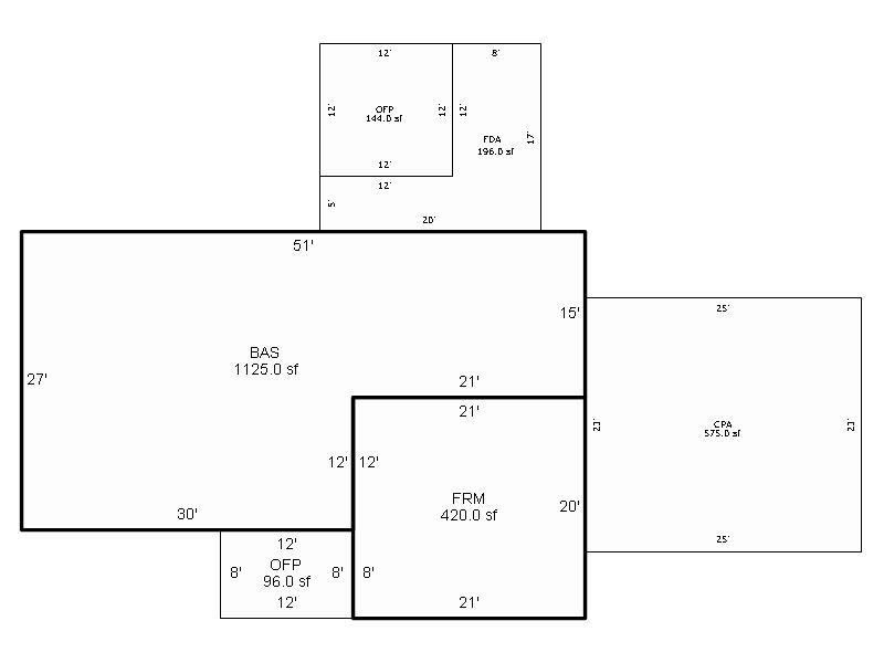
Main Body (SQFT) 1125
Year Built 1973
Additions 6
Effective Year 2003
Remodeled 0
Interior Adj.
Other Features
Building Total & Improvement Details

Grade B-10 110%
Percentage Complete 100
Total Adjusted Replacement Cost New $415,071
Physical Depreciation (% Bad) AVER 20%
Depreciated Value $332,057
Economic Depreciation (% Bad) 0
Functional Depreciation (% Bad) 0
Total Depreciated Value $332,057
Market Area Factor 1.12
Building Value $371,900
Misc Improvements Value $1,400
Total Improvement Value $373,300

Assessed Land Value $41,400
   
Assessed Total Value $414,700



Addition Summary 
StoryTypeCodeArea
1.00 OPEN FRAME PORCH OPEN 96
1.00 FRAME ADDITION FRAM 420
1.00 CARPORT AVERAGE CARP 575
1.00 OPEN FRAME PORCH OPEN 144
1.00 FRAME DECK AVERAGE FRAM 196
1.00 UPPER STORY FINISHED UPPE 810
 
Other Improvements 
UnitsDescriptionItemCodeYear% BadValue
12X10 DIMENSIONS SHED-R 2017 53 1000
10X10 DIMENSIONS POP-R 2016 36 400
 


Building Sketch
Photograph
Building Sketch Building Photo
(Click sketch for bigger image)