Detailed Property Information

Building Summary

Data last updated on: 1/1/0001     Ownership current as of: 2/24/2026     Tax Year: 2026
REID 6886671549000

PIN # 6886-67-1549

Location Address Property Description
109 Oak ST LO:007 BL:5407
   
Property Owner Owner's Mailing Address
ENGLER, TUCKER J
109 OAK ST
KERNERSVILLE NC 27284
Parcel
Buildings
Misc Improvements
Land
Deeds
Notes
Sales
Photos
Tax Bill
Map
Building Location Address
109 Oak ST
Building Description
SINGLE-FAMILY
Card   of  1
Bldg Type RESIDENTIAL
Units 0
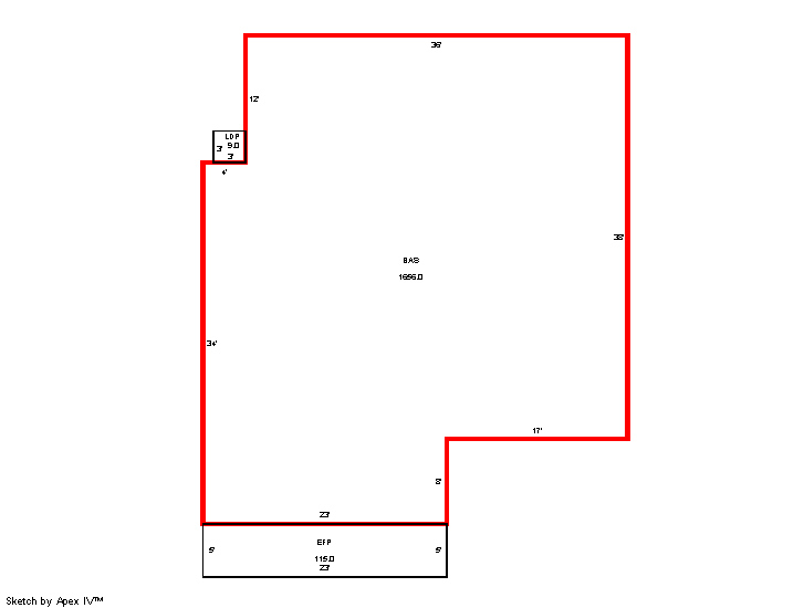
Living Area (SQFT) 1656
Number of Stories 1.00
Style CONVENTIONAL
Foundation MASONRY
Frame FRAME
Exterior ALUMINUM
Const Type
Heating Forced Warm Air
Air Cond CENTRAL
Plumbing Baths (Full):   1
Baths (Half):   1
Extra Fixtures:   0
Total Plumbing Fixtures:   5 
Bedrooms 2
Floor CARPET-HARDWOOD
Roof Cover Asphalt Shingle
Roof Type GABLE
Main Body (SQFT) 1656
Year Built 1947
Additions 3
Effective Year 1978
Remodeled 0
Interior Adj.
Other Features
Building Total & Improvement Details

Grade C-5 95%
Percentage Complete 100
Total Adjusted Replacement Cost New $242,790
Physical Depreciation (% Bad) AVER 66%
Depreciated Value $82,549
Economic Depreciation (% Bad) 0
Functional Depreciation (% Bad) 20
Total Depreciated Value $66,039
Market Area Factor 1.00
Building Value $66,000
Misc Improvements Value
Total Improvement Value $66,000

Assessed Land Value $84,000
   
Assessed Total Value $150,000



Addition Summary 
StoryTypeCodeArea
1.00 ENCLOSED FRAME PORCH ENCL 115
1.00 LANDING LC LAND 9
1.00 LANDING LC-R LAND 1
 
Other Improvements 
UnitsDescriptionItemCodeYear% BadValue
22x16 DIMENSIONS GAR/CB/FLOOR/FIN-R 1985 73
10x13 DIMENSIONS SHED-R 2008 80
 


Building Sketch
Photograph
Building Sketch Building Photo
(Click sketch for bigger image)