Detailed Property Information

Building Summary

Data last updated on: 1/1/0001     Ownership current as of: 12/17/2025     Tax Year: 2025
REID 6825477242000

PIN # 6825-47-7242

Location Address Property Description
241 Halcyon AVE LO:002 BL:1321
   
Property Owner Owner's Mailing Address
ROBERT AND SHERRI CENTRA JOINT TRUST;CENTRA, ROBERT TRUSTEE;CENTRA, SHERRI TRUSTEE
241 HALCYON AVE
WINSTON SALEM NC 27104
Parcel
Buildings
Misc Improvements
Land
Deeds
Notes
Sales
Photos
Tax Bill
Map
Building Location Address
241 Halcyon AVE
Building Description
SINGLE-FAMILY
Card   of  1
Bldg Type RESIDENTIAL
Units 0
Living Area (SQFT) 3204
Number of Stories 1.00
Style RANCH
Foundation MASONRY
Frame FRAME
Exterior ALUMINUM
Const Type
Heating Forced Warm Air
Air Cond CENTRAL
Plumbing Baths (Full):   4
Baths (Half):   0
Extra Fixtures:   0
Total Plumbing Fixtures:   12 
Bedrooms 4
Floor CARPET-HARDWOOD
Roof Cover Asphalt Shingle
Roof Type GABLE
Main Body (SQFT) 3204
Year Built 1954
Additions 6
Effective Year 1990
Remodeled 0
Interior Adj.
Other Features
Building Total & Improvement Details

Grade B+15 140%
Percentage Complete 100
Total Adjusted Replacement Cost New $775,900
Physical Depreciation (% Bad) AVER 38%
Depreciated Value $481,213
Economic Depreciation (% Bad) 0
Functional Depreciation (% Bad) 0
Total Depreciated Value $481,213
Market Area Factor 1.03
Building Value $495,600
Misc Improvements Value $400
Total Improvement Value $496,000

Assessed Land Value $315,000
   
Assessed Total Value $811,000



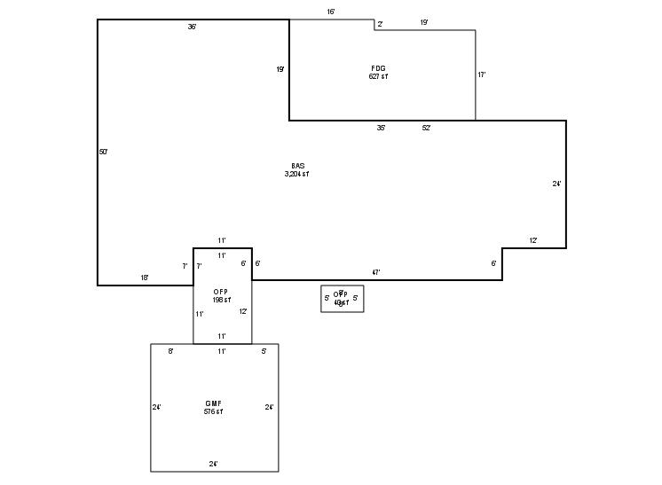
Addition Summary 
StoryTypeCodeArea
1.00 FRAME DECK GOOD FRAM 627
1.00 OPEN FRAME PORCH OPEN 198
1.00 GAR/MAS/FLOOR/FIN GAR/ 576
1.00 OPEN FRAME PORCH OPEN 40
1.00 BASEMENT-UNFIN-CF BASE 463
1.00 ATTIC UNFINISHED ATTI 742
 
Other Improvements 
UnitsDescriptionItemCodeYear% BadValue
7x7 DIMENSIONS GAZEBO-R 1995 80 400
 


Building Sketch
Photograph
Building Sketch Building Photo
(Click sketch for bigger image)