Detailed Property Information

Building Summary

Data last updated on: 1/1/0001     Ownership current as of: 11/15/2025     Tax Year: 2025
REID 6887967667000

PIN # 6887-96-7667

Location Address Property Description
2685 Colchester DR LO:004 BL:5414A
   
Property Owner Owner's Mailing Address
TEAGUE, PAMELA
2685 COLCHESTER DR
KERNERSVILLE NC 27284
Parcel
Buildings
Misc Improvements
Land
Deeds
Notes
Sales
Photos
Tax Bill
Map
Building Location Address
2685 Colchester DR
Building Description
SINGLE-FAMILY
Card   of  1
Bldg Type RESIDENTIAL
Units 0
Living Area (SQFT) 1545
Number of Stories 1.50
Style CONVENTIONAL
Foundation MASONRY
Frame FRAME
Exterior WOOD, HORZ
Const Type
Heating Heat Pump
Air Cond HEAT PUMP
Plumbing Baths (Full):   2
Baths (Half):   0
Extra Fixtures:   0
Total Plumbing Fixtures:   6 
Bedrooms 3
Floor CARPET-PLYWOOD
Roof Cover Asphalt Shingle
Roof Type GABLE
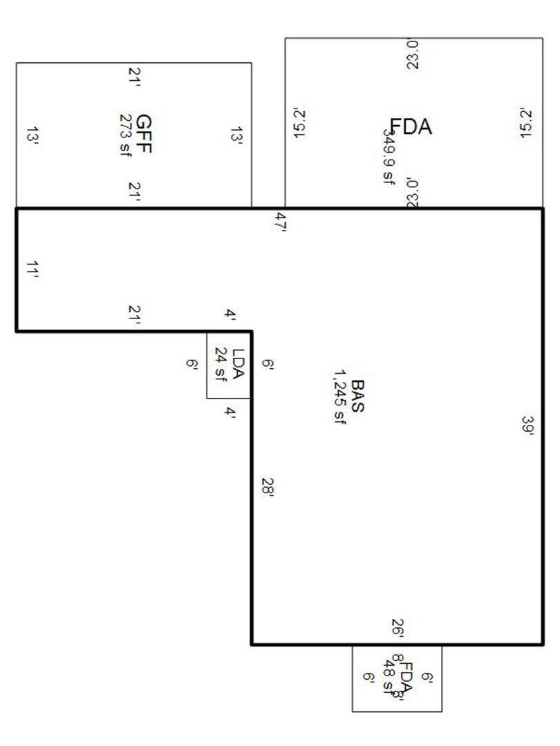
Main Body (SQFT) 1245
Year Built 1977
Additions 7
Effective Year 2014
Remodeled 0
Interior Adj.
Other Features
Building Total & Improvement Details

Grade C+5 105%
Percentage Complete 100
Total Adjusted Replacement Cost New $256,210
Physical Depreciation (% Bad) AVER 10%
Depreciated Value $230,589
Economic Depreciation (% Bad) 0
Functional Depreciation (% Bad) 0
Total Depreciated Value $230,589
Market Area Factor 1.03
Building Value $237,500
Misc Improvements Value
Total Improvement Value $237,500

Assessed Land Value $40,000
   
Assessed Total Value $277,500



Addition Summary 
StoryTypeCodeArea
1.00 FRAME DECK AVERAGE FRAM 48
1.00 LANDING AVERAGE LAND 24
1.00 FRAME DECK AVERAGE FRAM 350
1.00 GAR/FRM/FLOOR/FIN GAR/ 273
1.00 ATTIC UNFINISHED ATTI 249
1.00 UPPER STORY FINISHED UPPE 300
1.00 LANDING AVERAGE-R LAND 1
 
Other Improvements 
 


Building Sketch
Photograph
Building Sketch Building Photo
(Click sketch for bigger image)