Detailed Property Information

Building Summary

Data last updated on: 1/1/0001     Ownership current as of: 11/15/2025     Tax Year: 2025
REID 6887976771000

PIN # 6887-97-6771

Location Address Property Description
2805 Colchester DR LO:011B BL:5414A
   
Property Owner Owner's Mailing Address
WADE, KOLTON HUNTER;FLETCHER, TENAY
2805 COLCHESTER DR
KERNESVILLE NC 27284
Parcel
Buildings
Misc Improvements
Land
Deeds
Notes
Sales
Photos
Tax Bill
Map
Building Location Address
2805 Colchester DR
Building Description
SINGLE-FAMILY
Card   of  1
Bldg Type RESIDENTIAL
Units 0
Living Area (SQFT) 2349
Number of Stories 1.00
Style SPLIT-FOYER
Foundation MASONRY
Frame FRAME
Exterior WOOD, HORZ
Const Type
Heating Heat Pump
Air Cond HEAT PUMP
Plumbing Baths (Full):   2
Baths (Half):   1
Extra Fixtures:   0
Total Plumbing Fixtures:   8 
Bedrooms 3
Floor CARPET-VINYL
Roof Cover Asphalt Shingle
Roof Type GABLE
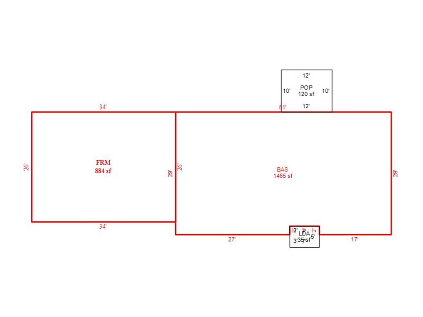
Main Body (SQFT) 1465
Year Built 1977
Additions 6
Effective Year 2005
Remodeled 0
Interior Adj.
Other Features
Building Total & Improvement Details

Grade C+5 105%
Percentage Complete 100
Total Adjusted Replacement Cost New $465,202
Physical Depreciation (% Bad) GOOD 18%
Depreciated Value $381,876
Economic Depreciation (% Bad) 0
Functional Depreciation (% Bad) 0
Total Depreciated Value $381,876
Market Area Factor 1.03
Building Value $393,300
Misc Improvements Value
Total Improvement Value $393,300

Assessed Land Value $54,000
   
Assessed Total Value $447,300



Addition Summary 
StoryTypeCodeArea
1.00 LANDING AVERAGE LAND 35
1.00 PATIO LC PATI 120
1.00 FRAME ADDITION FRAM 884
1.00 BASEMENT-UNFIN-CF BASE 1612
1.00 BASEMENT-FIN-LC-R BASE 987
1.00 LANDING AVERAGE-R LAND 1
 
Other Improvements 
 


Building Sketch
Photograph
Building Sketch Building Photo
(Click sketch for bigger image)