Detailed Property Information

Building Summary

Data last updated on: 1/1/0001     Ownership current as of: 11/15/2025     Tax Year: 2025
REID 6887961549000

PIN # 6887-96-1549

Location Address Property Description
2565 Gunstock DR LO:035 BL:5414A
   
Property Owner Owner's Mailing Address
TARTTIER, DREW P;TARTTIER, KELLY M;CASSELLA-KNOX, JEANNE M
2565 GUNSTOCK DR
KERNERSVILLE NC 27284
Parcel
Buildings
Misc Improvements
Land
Deeds
Notes
Sales
Photos
Tax Bill
Map
Building Location Address
2565 Gunstock DR
Building Description
SINGLE-FAMILY
Card   of  1
Bldg Type RESIDENTIAL
Units 0
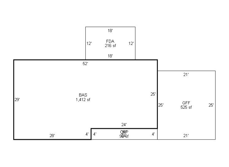
Living Area (SQFT) 1412
Number of Stories 1.00
Style CONVENTIONAL
Foundation MASONRY
Frame FRAME
Exterior WOOD, HORZ
Const Type
Heating Heat Pump
Air Cond HEAT PUMP
Plumbing Baths (Full):   2
Baths (Half):   0
Extra Fixtures:   0
Total Plumbing Fixtures:   6 
Bedrooms 3
Floor CARPET-PLYWOOD
Roof Cover Asphalt Shingle
Roof Type GABLE
Main Body (SQFT) 1412
Year Built 1978
Additions 4
Effective Year 2003
Remodeled 0
Interior Adj.
Other Features
Building Total & Improvement Details

Grade C+5 105%
Percentage Complete 100
Total Adjusted Replacement Cost New $279,430
Physical Depreciation (% Bad) AVER 23%
Depreciated Value $215,161
Economic Depreciation (% Bad) 0
Functional Depreciation (% Bad) 0
Total Depreciated Value $215,161
Market Area Factor 1.03
Building Value $221,600
Misc Improvements Value
Total Improvement Value $221,600

Assessed Land Value $44,000
   
Assessed Total Value $265,600



Addition Summary 
StoryTypeCodeArea
1.00 FRAME DECK AVERAGE FRAM 216
1.00 OPEN FRAME PORCH OPEN 96
1.00 GAR/FRM/FLOOR/FIN GAR/ 525
1.00 BASEMENT-UNFIN-CF BASE 353
 
Other Improvements 
UnitsDescriptionItemCodeYear% BadValue
6x5 DIMENSIONS SHED-R 1960 80
 


Building Sketch
Photograph
Building Sketch Building Photo
(Click sketch for bigger image)