Detailed Property Information

Building Summary

Data last updated on: 1/1/0001     Ownership current as of: 11/15/2025     Tax Year: 2025
REID 6887869953000

PIN # 6887-86-9953

Location Address Property Description
2595 Gunstock DR LO:038 BL:5414A
   
Property Owner Owner's Mailing Address
HERRERA, DIANDRA PATRICIA;REYNOSO, KELVIN RAFAEL
2595 GUNSTOCK DR
KERNERSVILLE NC 27284
Parcel
Buildings
Misc Improvements
Land
Deeds
Notes
Sales
Photos
Tax Bill
Map
Building Location Address
2595 Gunstock DR
Building Description
SINGLE-FAMILY
Card   of  1
Bldg Type RESIDENTIAL
Units 0
Living Area (SQFT) 1262
Number of Stories 1.10
Style CONTEMPORARY
Foundation MASONRY
Frame FRAME
Exterior WOOD, HORZ
Const Type
Heating Heat Pump
Air Cond HEAT PUMP
Plumbing Baths (Full):   2
Baths (Half):   0
Extra Fixtures:   0
Total Plumbing Fixtures:   6 
Bedrooms 3
Floor CARPET-CONCRETE
Roof Cover Asphalt Shingle
Roof Type GABLE
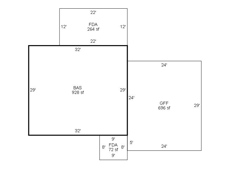
Main Body (SQFT) 928
Year Built 1978
Additions 6
Effective Year 2003
Remodeled 0
Interior Adj.
Other Features
Building Total & Improvement Details

Grade C+5 105%
Percentage Complete 100
Total Adjusted Replacement Cost New $310,572
Physical Depreciation (% Bad) AVER 23%
Depreciated Value $239,987
Economic Depreciation (% Bad) 0
Functional Depreciation (% Bad) 0
Total Depreciated Value $239,987
Market Area Factor 1.03
Building Value $247,200
Misc Improvements Value
Total Improvement Value $247,200

Assessed Land Value $44,000
   
Assessed Total Value $291,200



Addition Summary 
StoryTypeCodeArea
1.00 GAR/FRM/FLOOR/FIN GAR/ 696
1.00 FRAME DECK AVERAGE FRAM 264
1.00 FRAME DECK AVERAGE FRAM 72
1.00 UPPER STORY FINISHED UPPE 334
1.00 BASEMENT-FIN-AVG-R BASE 464
1.00 BASEMENT-UNFIN-CF BASE 464
 
Other Improvements 
 


Building Sketch
Photograph
Building Sketch Building Photo
(Click sketch for bigger image)