Detailed Property Information

Building Summary

Data last updated on: 1/1/0001     Ownership current as of: 2/12/2026     Tax Year: 2026
REID 6826932232000

PIN # 6826-93-2232

Location Address Property Description
1624 N Cherry ST LO:010 BL:1350
   
Property Owner Owner's Mailing Address
NYAFOUNA, GEORGES;NYAFOUNA, LUZ MINERVA
1624 N CHERRY ST
WINSTON SALEM NC 27105
Parcel
Buildings
Misc Improvements
Land
Income
Deeds
Notes
Sales
Photos
Tax Bill
Map
Building Location Address
1624 N Cherry ST
Building Description
SINGLE-FAMILY
Card   of  1
Bldg Type RESIDENTIAL
Units 0
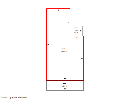
Living Area (SQFT) 1498
Number of Stories 1.00
Style CONVENTIONAL
Foundation MASONRY
Frame FRAME
Exterior VINYL
Const Type
Heating Heat Pump
Air Cond HEAT PUMP
Plumbing Baths (Full):   2
Baths (Half):   0
Extra Fixtures:   0
Total Plumbing Fixtures:   6 
Bedrooms 3
Floor CARPET
Roof Cover Asphalt Shingle
Roof Type GABLE
Main Body (SQFT) 1498
Year Built 2013
Additions 4
Effective Year 2016
Remodeled 0
Interior Adj.
Other Features
Building Total & Improvement Details

Grade C+5 105%
Percentage Complete 100
Total Adjusted Replacement Cost New $260,799
Physical Depreciation (% Bad) AVER 8%
Depreciated Value $239,935
Economic Depreciation (% Bad) 0
Functional Depreciation (% Bad) 0
Total Depreciated Value $239,935
Market Area Factor 1.00
Building Value $239,900
Misc Improvements Value
Total Improvement Value $239,900

Assessed Land Value $13,500
   
Assessed Total Value $253,400



Addition Summary 
StoryTypeCodeArea
1.00 OPEN FRAME PORCH OPEN 240
1.00 FRAME DECK AVERAGE FRAM 80
1.00 PATIO LC PATI 240
1.00 BASEMENT-UNFIN-CF BASE 228
 
Other Improvements 
 


Building Sketch
Photograph
Building Sketch Building Photo
(Click sketch for bigger image)