Detailed Property Information

Building Summary

Data last updated on: 1/1/0001     Ownership current as of: 12/17/2025     Tax Year: 2025
REID 6815866338000

PIN # 6815-86-6338

Location Address Property Description
2736 Windsor RD LO:007 BL:1445A
   
Property Owner Owner's Mailing Address
ICKES, JEFFREY M;ICKES, KIMBERLY G
2736 WINDSOR RD
WINSTON SALEM NC 27104
Parcel
Buildings
Misc Improvements
Land
Deeds
Notes
Sales
Photos
Tax Bill
Map
Building Location Address
2736 Windsor RD
Building Description
SINGLE-FAMILY
Card   of  1
Bldg Type RESIDENTIAL
Units 0
Living Area (SQFT) 2142
Number of Stories 1.00
Style RANCH
Foundation MASONRY
Frame MASONRY
Exterior BRICK
Const Type
Heating Forced Warm Air
Air Cond CENTRAL
Plumbing Baths (Full):   2
Baths (Half):   1
Extra Fixtures:   0
Total Plumbing Fixtures:   8 
Bedrooms 3
Floor CONCRETE
Roof Cover Asphalt Shingle
Roof Type GABLE
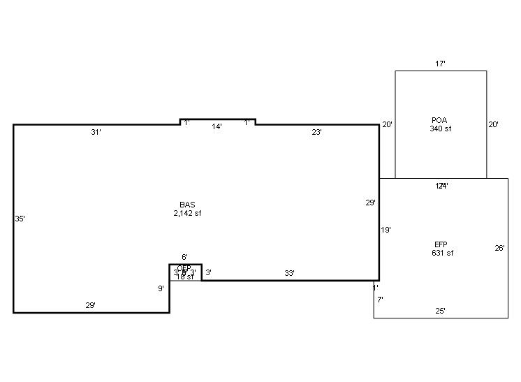
Main Body (SQFT) 2142
Year Built 1951
Additions 4
Effective Year 1990
Remodeled 0
Interior Adj.
Other Features
Building Total & Improvement Details

Grade C+5 105%
Percentage Complete 100
Total Adjusted Replacement Cost New $428,865
Physical Depreciation (% Bad) AVER 45%
Depreciated Value $235,876
Economic Depreciation (% Bad) 0
Functional Depreciation (% Bad) 0
Total Depreciated Value $235,876
Market Area Factor 1.03
Building Value $243,000
Misc Improvements Value $600
Total Improvement Value $243,600

Assessed Land Value $504,000
   
Assessed Total Value $747,600



Addition Summary 
StoryTypeCodeArea
1.00 OPEN FRAME PORCH OPEN 18
1.00 ENCLOSED FRAME PORCH ENCL 631
1.00 PATIO AVERAGE PATI 340
1.00 BASEMENT-UNFIN-CF BASE 500
 
Other Improvements 
UnitsDescriptionItemCodeYear% BadValue
21x23 DIMENSIONS CPP-R 1999 90 600
 


Building Sketch
Photograph
Building Sketch Building Photo
(Click sketch for bigger image)