Detailed Property Information

Building Summary

Data last updated on: 1/1/0001     Ownership current as of: 4/24/2026     Tax Year: 2026
REID 6835135959000

PIN # 6835-13-5959

Location Address Property Description
155 Tar Branch CT THE MILL AT TAR BRANCH LO:155 BL:6406 BU:1
   
Property Owner Owner's Mailing Address
TEAGUE, REMONA;BALDWIN, ROBERT
155 TAR BRANCH CT
WINSTON SALEM NC 27101
Parcel
Buildings
Misc Improvements
Land
Deeds
Notes
Sales
Photos
Tax Bill
Map
Building Location Address
155 Tar Branch CT
Card   of  1        Section   of  1
Building Details

Building Name Loft-THE MILL AT TAR BRANCH
Primary Occupancy Type 15
Primary Occupancy 15-344-Office Buildi
Primary Class C
Primary Quality Good
Year Built 1906
Effective Year 2004
Physical Depreciation (Rating) AVERAGE
Physical Depreciation (% Bad) 18.00
Economic Depreciation (% Bad)
Functional Depreciation (% Bad)
Gross Leasable Area (SQFT) 1964
Remodeled Year 2000
Total Stories 1

Foundation Concrete
Roof Type Hip
Roof Cover Shingles
Insulation ROOF
Exterior Finish Brick/Block
Construction BRICK/1-STY
Section Details

Occupancy Type 15


Occupancy 15-344-Office Buildi
Quality Good
Sprinkler No Sprinklers
Exterior Walls 805-Brick with Block
Depreciation 14%
Depreciation MSVPO - COMM ONLY
Class C
Heat 614-Heat Pump
Building Total & Improvement Details

Total Adjusted Replacement Cost New $419,080
Physical Depreciation (% Bad) AVERAGE 18.00
Depreciated Value $358,135
Economic Depreciation (% Bad) 0
Functional Depreciation (% Bad) 0
Total Depreciated Value $358,135
Market Area Factor 1.00
Building Value $358,100
Misc Improvements Value $1,700
Total Improvement Value $359,800

Assessed Land Value $63,200
   
Assessed Total Value $423,000


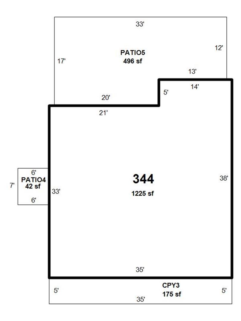
Addition Summary 
StoryTypeCodeArea
1.00 CANOPY 3 CANO 175
1.00 PATIO 4 PATI 42
1.00 PATIO 5 PATI 496
1.00 MEZZANINE 8 MEZZ 739
 
Other Improvements 
UnitsDescriptionItemCodeYear% BadValue
25000 SIZE PAVING-ASP-N-BASE-3-C 2016 80 1200
6000 SIZE PAVING-CONC-N-BASE-3-C 2016 60 500
 


Building Sketch
Photograph
Building Sketch Building Photo
(Click sketch for bigger image)