Detailed Property Information

Building Summary

Data last updated on: 1/1/0001     Ownership current as of: 3/20/2026     Tax Year: 2026
REID 6837440222000

PIN # 6837-44-0222

Location Address Property Description
4210 Mineral AVE LO:304B BL:1515
   
Property Owner Owner's Mailing Address
KEMPPAINEN, BRANDON;KEMPPAINEN, MONICA
4709 BELLWEST DR
KERNERSVILLE NC 27284
Parcel
Buildings
Misc Improvements
Land
Deeds
Notes
Sales
Photos
Tax Bill
Map
Building Location Address
4210 Mineral AVE
Building Description
SINGLE-FAMILY
Card   of  1
Bldg Type RESIDENTIAL
Units 0
Living Area (SQFT) 1008
Number of Stories 1.00
Style CONVENTIONAL
Foundation MASONRY
Frame FRAME
Exterior COMPOSITION
Const Type
Heating Forced Warm Air
Air Cond CENTRAL
Plumbing Baths (Full):   1
Baths (Half):   0
Extra Fixtures:   0
Total Plumbing Fixtures:   3 
Bedrooms 3
Floor PLYWOOD-TILE
Roof Cover Asphalt Shingle
Roof Type GABLE
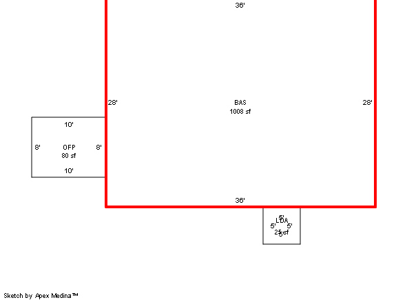
Main Body (SQFT) 1008
Year Built 1956
Additions 3
Effective Year 1983
Remodeled 0
Interior Adj.
Other Features
Building Total & Improvement Details

Grade C-5 95%
Percentage Complete 100
Total Adjusted Replacement Cost New $153,268
Physical Depreciation (% Bad) AVER 59%
Depreciated Value $62,840
Economic Depreciation (% Bad) 0
Functional Depreciation (% Bad) 0
Total Depreciated Value $62,840
Market Area Factor 1.00
Building Value $62,800
Misc Improvements Value $100
Total Improvement Value $62,900

Assessed Land Value $9,900
   
Assessed Total Value $72,800



Addition Summary 
StoryTypeCodeArea
1.00 LANDING AVERAGE LAND 25
1.00 OPEN FRAME PORCH OPEN 80
1.00 LANDING AVERAGE-R LAND 1
 
Other Improvements 
UnitsDescriptionItemCodeYear% BadValue
7x10 DIMENSIONS SHED-R 2017 53
20x15 DIMENSIONS SHED-R 2017 53 100
 


Building Sketch
Photograph
Building Sketch Building Photo
(Click sketch for bigger image)