Detailed Property Information

Building Summary

Data last updated on: 1/1/0001     Ownership current as of: 3/20/2026     Tax Year: 2026
REID 6836516747000

PIN # 6836-51-6747

Location Address Property Description
1312 Highland AVE LO:015 BL:9998
   
Property Owner Owner's Mailing Address
EDENS, CHRISTOPHER U;EDENS, RAMONA D
1312 HIGHLAND AVE
WINSTON SALEM NC 27101
Parcel
Buildings
Misc Improvements
Land
Deeds
Notes
Sales
Photos
Tax Bill
Map
Building Location Address
1312 Highland AVE
Building Description
SINGLE-FAMILY
Card   of  1
Bldg Type RESIDENTIAL
Units 0
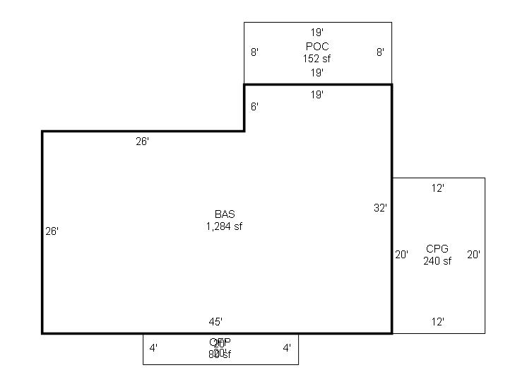
Living Area (SQFT) 1284
Number of Stories 1.00
Style CONVENTIONAL
Foundation MASONRY
Frame MASONRY
Exterior BRICK
Const Type
Heating Heat Pump
Air Cond HEAT PUMP
Plumbing Baths (Full):   1
Baths (Half):   1
Extra Fixtures:   0
Total Plumbing Fixtures:   5 
Bedrooms 3
Floor CARPET-HARDWOOD
Roof Cover Asphalt Shingle
Roof Type GABLE
Main Body (SQFT) 1284
Year Built 1972
Additions 3
Effective Year 2002
Remodeled 0
Interior Adj.
Other Features
Building Total & Improvement Details

Grade C-5 95%
Percentage Complete 100
Total Adjusted Replacement Cost New $215,786
Physical Depreciation (% Bad) AVER 24%
Depreciated Value $163,997
Economic Depreciation (% Bad) 0
Functional Depreciation (% Bad) 0
Total Depreciated Value $163,997
Market Area Factor 1.00
Building Value $164,000
Misc Improvements Value $300
Total Improvement Value $164,300

Assessed Land Value $20,000
   
Assessed Total Value $184,300



Addition Summary 
StoryTypeCodeArea
1.00 OPEN FRAME PORCH OPEN 80
1.00 CARPORT GOOD CARP 240
1.00 PATIO COVERED PATI 152
 
Other Improvements 
UnitsDescriptionItemCodeYear% BadValue
10x6 DIMENSIONS SHED-R 1972 80 300
 


Building Sketch
Photograph
Building Sketch Building Photo
(Click sketch for bigger image)