Detailed Property Information

Building Summary

Data last updated on: 1/1/0001     Ownership current as of: 3/20/2026     Tax Year: 2026
REID 6836622048000

PIN # 6836-62-2048

Location Address Property Description
1140 E Fourteenth ST LO:031 BL:9998
   
Property Owner Owner's Mailing Address
LYNN, MADELYN L
1140 E FOURTEENTH ST
WINSTON SALEM NC 27105
Parcel
Buildings
Misc Improvements
Land
Deeds
Notes
Sales
Photos
Tax Bill
Map
Building Location Address
1140 E Fourteenth ST
Building Description
SINGLE-FAMILY
Card   of  1
Bldg Type RESIDENTIAL
Units 0
Living Area (SQFT) 1100
Number of Stories 1.00
Style CONVENTIONAL
Foundation MASONRY
Frame MASONRY
Exterior BRICK
Const Type
Heating Forced Warm Air
Air Cond CENTRAL
Plumbing Baths (Full):   1
Baths (Half):   1
Extra Fixtures:   0
Total Plumbing Fixtures:   5 
Bedrooms 3
Floor CARPET-PLYWOOD
Roof Cover Asphalt Shingle
Roof Type GABLE
Main Body (SQFT) 1100
Year Built 1966
Additions 6
Effective Year 1993
Remodeled 0
Interior Adj.
Other Features
Building Total & Improvement Details

Grade C-5 95%
Percentage Complete 100
Total Adjusted Replacement Cost New $219,283
Physical Depreciation (% Bad) AVER 40%
Depreciated Value $131,570
Economic Depreciation (% Bad) 0
Functional Depreciation (% Bad) 0
Total Depreciated Value $131,570
Market Area Factor 1.00
Building Value $131,600
Misc Improvements Value
Total Improvement Value $131,600

Assessed Land Value $20,000
   
Assessed Total Value $151,600



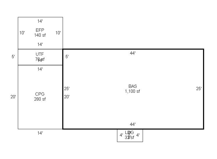
Addition Summary 
StoryTypeCodeArea
1.00 LANDING GOOD LAND 32
1.00 CARPORT GOOD CARP 280
1.00 UTILITY FRAME UTIL 70
1.00 ENCLOSED FRAME PORCH ENCL 140
1.00 BASEMENT-UNFIN-CF BASE 550
1.00 LANDING GOOD-R LAND 1
 
Other Improvements 
 


Building Sketch
Photograph
Building Sketch Building Photo
(Click sketch for bigger image)