Detailed Property Information

Building Summary

Data last updated on: 1/1/0001     Ownership current as of: 3/20/2026     Tax Year: 2026
REID 6836528044000

PIN # 6836-52-8044

Location Address Property Description
1365 Highland AVE LO:037 BL:9998
   
Property Owner Owner's Mailing Address
RMAINTENANCE LLC
3800 SOUTHEAST 86TH PLACE
OKLAHOMA CITY OK 73135
Parcel
Buildings
Misc Improvements
Land
Deeds
Notes
Sales
Photos
Tax Bill
Map
Building Location Address
1365 Highland AVE
Building Description
SINGLE-FAMILY
Card   of  1
Bldg Type RESIDENTIAL
Units 0
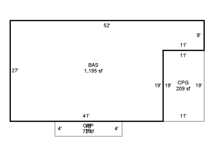
Living Area (SQFT) 1195
Number of Stories 1.00
Style CONVENTIONAL
Foundation MASONRY
Frame MASONRY
Exterior BRICK
Const Type
Heating Electric Bb/Clg
Air Cond NONE
Plumbing Baths (Full):   1
Baths (Half):   1
Extra Fixtures:   0
Total Plumbing Fixtures:   5 
Bedrooms 3
Floor CARPET-HARDWOOD
Roof Cover Asphalt Shingle
Roof Type GABLE
Main Body (SQFT) 1195
Year Built 1970
Additions 2
Effective Year 1996
Remodeled 0
Interior Adj.
Other Features
Building Total & Improvement Details

Grade C-5 95%
Percentage Complete 100
Total Adjusted Replacement Cost New $194,058
Physical Depreciation (% Bad) AVER 34%
Depreciated Value $128,078
Economic Depreciation (% Bad) 0
Functional Depreciation (% Bad) 0
Total Depreciated Value $128,078
Market Area Factor 1.00
Building Value $128,100
Misc Improvements Value
Total Improvement Value $128,100

Assessed Land Value $20,000
   
Assessed Total Value $148,100



Addition Summary 
StoryTypeCodeArea
1.00 OPEN FRAME PORCH OPEN 72
1.00 CARPORT GOOD CARP 209
 
Other Improvements 
 


Building Sketch
Photograph
Building Sketch Building Photo
(Click sketch for bigger image)