Detailed Property Information

Building Summary

Data last updated on: 1/1/0001     Ownership current as of: 3/20/2026     Tax Year: 2026
REID 6836519441000

PIN # 6836-51-9441

Location Address Property Description
1232 Dublin DR LO:055 BL:9998
   
Property Owner Owner's Mailing Address
Stokes, Quincy;Alexander, Tracy Heirs
1232 Dublin Dr
Winston Salem NC 27101
Parcel
Buildings
Misc Improvements
Land
Deeds
Notes
Sales
Photos
Tax Bill
Map
Building Location Address
1232 Dublin DR
Building Description
SINGLE-FAMILY
Card   of  1
Bldg Type RESIDENTIAL
Units 0
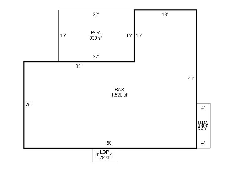
Living Area (SQFT) 1520
Number of Stories 1.00
Style CONVENTIONAL
Foundation SLAB
Frame MASONRY
Exterior BRICK
Const Type
Heating Electric Bb/Clg
Air Cond CENTRAL
Plumbing Baths (Full):   1
Baths (Half):   1
Extra Fixtures:   0
Total Plumbing Fixtures:   5 
Bedrooms 3
Floor CONCRETE-HARDWOOD
Roof Cover Asphalt Shingle
Roof Type GABLE
Main Body (SQFT) 1520
Year Built 1970
Additions 4
Effective Year 1996
Remodeled 0
Interior Adj.
Other Features
Building Total & Improvement Details

Grade C-5 95%
Percentage Complete 100
Total Adjusted Replacement Cost New $238,138
Physical Depreciation (% Bad) AVER 34%
Depreciated Value $157,171
Economic Depreciation (% Bad) 0
Functional Depreciation (% Bad) 0
Total Depreciated Value $157,171
Market Area Factor 1.00
Building Value $157,200
Misc Improvements Value
Total Improvement Value $157,200

Assessed Land Value $20,000
   
Assessed Total Value $177,200



Addition Summary 
StoryTypeCodeArea
1.00 LANDING LC LAND 28
1.00 PATIO AVERAGE PATI 330
1.00 UTILITY MASONRY UTIL 52
1.00 LANDING LC-R LAND 1
 
Other Improvements 
 


Building Sketch
Photograph
Building Sketch Building Photo
(Click sketch for bigger image)