Detailed Property Information

Building Summary

Data last updated on: 1/1/0001     Ownership current as of: 4/3/2026     Tax Year: 2026
REID 6868695427000

PIN # 6868-69-5427

Location Address Property Description
6571 Woodmere DR LO:300 BL:5172
   
Property Owner Owner's Mailing Address
VIVAS, EDWIN;VIVAS, SHELLEY
6571 WOODMERE DR
WALKERTOWN NC 27051

Value subject to change, property assessment under review

Parcel
Buildings
Misc Improvements
Land
Deeds
Notes
Sales
Photos
Tax Bill
Map
Building Location Address
6571 Woodmere DR
Building Description
SINGLE-FAMILY
Card   of  1
Bldg Type RESIDENTIAL
Units 0
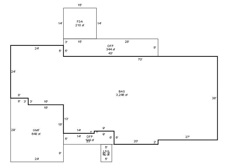
Living Area (SQFT) 3246
Number of Stories 1.00
Style CONVENTIONAL
Foundation MASONRY
Frame MASONRY
Exterior BRICK
Const Type
Heating Heat Pump
Air Cond HEAT PUMP
Plumbing Baths (Full):   4
Baths (Half):   1
Extra Fixtures:   0
Total Plumbing Fixtures:   14 
Bedrooms 3
Floor CONCRETE
Roof Cover Asphalt Shingle
Roof Type GABLE
Main Body (SQFT) 3246
Year Built 1986
Additions 8
Effective Year 1999
Remodeled 0
Interior Adj.
Other Features
Building Total & Improvement Details

Grade C 100%
Percentage Complete 100
Total Adjusted Replacement Cost New
Physical Depreciation (% Bad) AVER 29%
Depreciated Value
Economic Depreciation (% Bad) 0
Functional Depreciation (% Bad) 15
Total Depreciated Value
Market Area Factor 0.94
Building Value
Misc Improvements Value
Total Improvement Value

Assessed Land Value
   
Assessed Total Value



Addition Summary 
StoryTypeCodeArea
1.00 OPEN FRAME PORCH OPEN 124
1.00 LANDING GOOD LAND 40
1.00 OPEN FRAME PORCH OPEN 344
1.00 FRAME DECK AVERAGE FRAM 210
1.00 GAR/MAS/FLOOR/FIN GAR/ 648
1.00 BASEMENT-UNFIN-CF BASE 701
1.00 BASEMENT-FIN-AVG-R BASE 880
1.00 LANDING GOOD-R LAND 1
 
Other Improvements 
 


Building Sketch
Photograph
Building Sketch Building Photo
(Click sketch for bigger image)