Detailed Property Information

Building Summary

Data last updated on: 1/1/0001     Ownership current as of: 4/8/2026     Tax Year: 2026
REID 6809160223000

PIN # 6809-16-0223

Location Address Property Description
3165 Wide Country RD LO:046 BL:4765
   
Property Owner Owner's Mailing Address
SCOTT, COLBY G;BRADLEY, LAURA KRISTEN
3165 WIDE COUNTRY RD
TOBACCOVILLE NC 27040
Parcel
Buildings
Misc Improvements
Land
Deeds
Notes
Sales
Photos
Tax Bill
Map
Building Location Address
3165 Wide Country RD
Building Description
SINGLE-FAMILY
Card   of  1
Bldg Type RESIDENTIAL
Units 0
Living Area (SQFT) 1215
Number of Stories 1.00
Style SPLIT-LEVEL
Foundation MASONRY
Frame MASONRY
Exterior BRICK
Const Type
Heating Heat Pump
Air Cond HEAT PUMP
Plumbing Baths (Full):   2
Baths (Half):   0
Extra Fixtures:   0
Total Plumbing Fixtures:   6 
Bedrooms 3
Floor CARPET-HARDWOOD
Roof Cover Asphalt Shingle
Roof Type GABLE
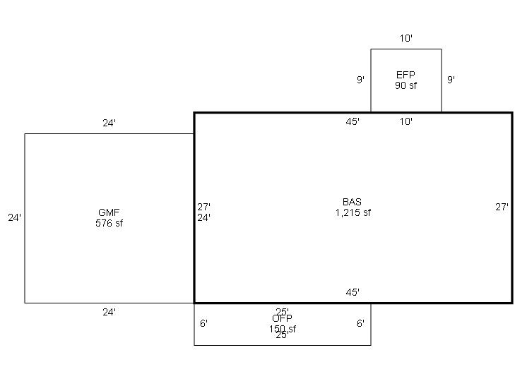
Main Body (SQFT) 1215
Year Built 1964
Additions 5
Effective Year 2001
Remodeled 0
Interior Adj.
Other Features
Building Total & Improvement Details

Grade C+5 105%
Percentage Complete 100
Total Adjusted Replacement Cost New $303,545
Physical Depreciation (% Bad) AVER 26%
Depreciated Value $224,808
Economic Depreciation (% Bad) 0
Functional Depreciation (% Bad) 0
Total Depreciated Value $224,808
Market Area Factor 1.00
Building Value $224,800
Misc Improvements Value $2,000
Total Improvement Value $226,800

Assessed Land Value $42,800
   
Assessed Total Value $269,600



Addition Summary 
StoryTypeCodeArea
1.00 ENCLOSED FRAME PORCH ENCL 90
1.00 OPEN FRAME PORCH OPEN 150
1.00 GAR/MAS/FLOOR/FIN GAR/ 576
1.00 BASEMENT-FIN-AVG-R BASE 403
1.00 BASEMENT-UNFIN-CF BASE 204
 
Other Improvements 
UnitsDescriptionItemCodeYear% BadValue
22x16 DIMENSIONS GAR/FRM/FLOOR/FIN-R 1964 90 1500
1 SIZE SHED-R 2017 53 500
 


Building Sketch
Photograph
Building Sketch Building Photo
(Click sketch for bigger image)