Detailed Property Information

Building Summary

Data last updated on: 1/1/0001     Ownership current as of: 2/24/2026     Tax Year: 2026
REID 6887549577000

PIN # 6887-54-9577

Location Address Property Description
1104 Piney Grove RD LO:001B BL:5412L
   
Property Owner Owner's Mailing Address
HUTCHINS, ADAM TATE;HUTCHINS, TIFFANY
320 BROOKSIDE CT
KERNERSVILLE NC 27284
Parcel
Buildings
Misc Improvements
Land
Deeds
Notes
Sales
Photos
Tax Bill
Map
Building Location Address
1104 Piney Grove RD
Building Description
SINGLE-FAMILY
Card   of  1
Bldg Type RESIDENTIAL
Units 0
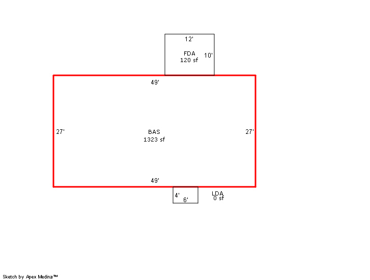
Living Area (SQFT) 1323
Number of Stories 1.00
Style MODULAR
Foundation MASONRY
Frame FRAME
Exterior VINYL
Const Type
Heating Heat Pump
Air Cond HEAT PUMP
Plumbing Baths (Full):   2
Baths (Half):   0
Extra Fixtures:   2
Total Plumbing Fixtures:   8 
Bedrooms 3
Floor CARPET-TILE
Roof Cover Asphalt Shingle
Roof Type GABLE
Main Body (SQFT) 1323
Year Built 2013
Additions 3
Effective Year 2013
Remodeled 0
Interior Adj.
Other Features
Building Total & Improvement Details

Grade C-5 95%
Percentage Complete 100
Total Adjusted Replacement Cost New $198,689
Physical Depreciation (% Bad) AVER 11%
Depreciated Value $176,833
Economic Depreciation (% Bad) 0
Functional Depreciation (% Bad) 0
Total Depreciated Value $176,833
Market Area Factor 1.00
Building Value $176,800
Misc Improvements Value $1,000
Total Improvement Value $177,800

Assessed Land Value $48,200
   
Assessed Total Value $226,000



Addition Summary 
StoryTypeCodeArea
1.00 FRAME DECK AVERAGE FRAM 120
1.00 LANDING AVERAGE LAND 24
1.00 LANDING AVERAGE-R LAND 1
 
Other Improvements 
UnitsDescriptionItemCodeYear% BadValue
10x16 DIMENSIONS SHED-R 2013 80 100
20x25 DIMENSIONS CPP-R 2013 48 900
 


Building Sketch
Photograph
Building Sketch Building Photo
(Click sketch for bigger image)