Detailed Property Information

Building Summary

Data last updated on: 1/1/0001     Ownership current as of: 3/17/2026     Tax Year: 2026
REID 6828621448000

PIN # 6828-62-1448

Location Address Property Description
228 Barlow CIR LO:030B BL:3508
   
Property Owner Owner's Mailing Address
RIDGE, CODY B
228 BARLOW CIR
WINSTON SALEM NC 27105
Parcel
Buildings
Misc Improvements
Land
Deeds
Notes
Sales
Photos
Tax Bill
Map
Building Location Address
228 Barlow CIR
Building Description
SINGLE-FAMILY
Card   of  1
Bldg Type RESIDENTIAL
Units 0
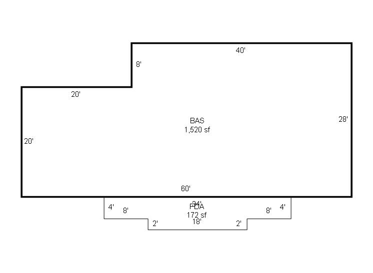
Living Area (SQFT) 1520
Number of Stories 1.00
Style CONVENTIONAL
Foundation MASONRY
Frame MASONRY
Exterior BRICK
Const Type
Heating Forced Warm Air
Air Cond CENTRAL
Plumbing Baths (Full):   1
Baths (Half):   1
Extra Fixtures:   0
Total Plumbing Fixtures:   5 
Bedrooms 3
Floor CONCRETE
Roof Cover Asphalt Shingle
Roof Type GABLE
Main Body (SQFT) 1520
Year Built 1963
Additions 2
Effective Year 1991
Remodeled 0
Interior Adj.
Other Features
Building Total & Improvement Details

Grade C+10 110%
Percentage Complete 100
Total Adjusted Replacement Cost New $325,045
Physical Depreciation (% Bad) AVER 44%
Depreciated Value $182,025
Economic Depreciation (% Bad) 0
Functional Depreciation (% Bad) 0
Total Depreciated Value $182,025
Market Area Factor 1.00
Building Value $182,000
Misc Improvements Value
Total Improvement Value $182,000

Assessed Land Value $26,400
   
Assessed Total Value $208,400



Addition Summary 
StoryTypeCodeArea
1.00 FRAME DECK AVERAGE FRAM 172
1.00 BASEMENT-UNFIN-CF BASE 1520
 
Other Improvements 
 


Building Sketch
Photograph
Building Sketch Building Photo
(Click sketch for bigger image)