Detailed Property Information

Building Summary

Data last updated on: 1/1/0001     Ownership current as of: 3/25/2026     Tax Year: 2026
REID 6834324195000

PIN # 6834-32-4195

Location Address Property Description
2942 Edwards ST LO:093B BL:1609
   
Property Owner Owner's Mailing Address
TAMAYO LAMI, OMAR JESUS
4592 FOLLANSBEE RD
WINSTON SALEM NC 27127
Parcel
Buildings
Misc Improvements
Land
Deeds
Notes
Sales
Photos
Tax Bill
Map
Building Location Address
2942 Edwards ST
Building Description
SINGLE-FAMILY
Card   of  1
Bldg Type RESIDENTIAL
Units 0
Living Area (SQFT) 1197
Number of Stories 1.00
Style CONVENTIONAL
Foundation MASONRY
Frame FRAME
Exterior VINYL
Const Type
Heating Forced Warm Air
Air Cond CENTRAL
Plumbing Baths (Full):   2
Baths (Half):   0
Extra Fixtures:   0
Total Plumbing Fixtures:   6 
Bedrooms 3
Floor CARPET-VINYL
Roof Cover Asphalt Shingle
Roof Type GABLE
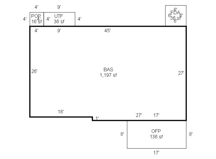
Main Body (SQFT) 1197
Year Built 2004
Additions 4
Effective Year 2004
Remodeled 0
Interior Adj.
Other Features
Building Total & Improvement Details

Grade C 100%
Percentage Complete 100
Total Adjusted Replacement Cost New $197,061
Physical Depreciation (% Bad) AVER 22%
Depreciated Value $153,708
Economic Depreciation (% Bad) 0
Functional Depreciation (% Bad) 0
Total Depreciated Value $153,708
Market Area Factor 1.00
Building Value $153,700
Misc Improvements Value
Total Improvement Value $153,700

Assessed Land Value $20,000
   
Assessed Total Value $173,700



Addition Summary 
StoryTypeCodeArea
1.00 PATIO LC PATI 16
1.00 UTILITY FRAME UTIL 36
1.00 FRAME DECK AVERAGE FRAM 36
1.00 OPEN FRAME PORCH OPEN 136
 
Other Improvements 
 


Building Sketch
Photograph
Building Sketch Building Photo
(Click sketch for bigger image)