Detailed Property Information

Building Summary

Data last updated on: 1/1/0001     Ownership current as of: 11/15/2025     Tax Year: 2025
REID 6887867792000

PIN # 6887-86-7792

Location Address Property Description
2560 Gunstock DR LO:044 BL:5414A
   
Property Owner Owner's Mailing Address
BELCHIK, KATHLEEN
2560 GUNSTOCK DR
KERNERSVILLE NC 27284
Parcel
Buildings
Misc Improvements
Land
Deeds
Notes
Sales
Photos
Tax Bill
Map
Building Location Address
2560 Gunstock DR
Building Description
SINGLE-FAMILY
Card   of  1
Bldg Type RESIDENTIAL
Units 0
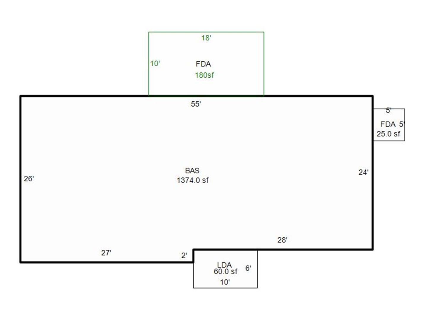
Living Area (SQFT) 1374
Number of Stories 1.00
Style RANCH
Foundation MASONRY
Frame FRAME
Exterior VINYL
Const Type
Heating Heat Pump
Air Cond HEAT PUMP
Plumbing Baths (Full):   2
Baths (Half):   0
Extra Fixtures:   0
Total Plumbing Fixtures:   6 
Bedrooms 3
Floor CARPET-PLYWOOD
Roof Cover Asphalt Shingle
Roof Type GABLE
Main Body (SQFT) 1374
Year Built 1978
Additions 4
Effective Year 2010
Remodeled 0
Interior Adj.
Other Features
Building Total & Improvement Details

Grade C+5 105%
Percentage Complete 100
Total Adjusted Replacement Cost New $228,874
Physical Depreciation (% Bad) AVER 15%
Depreciated Value $194,543
Economic Depreciation (% Bad) 0
Functional Depreciation (% Bad) 0
Total Depreciated Value $194,543
Market Area Factor 1.03
Building Value $200,400
Misc Improvements Value $400
Total Improvement Value $200,800

Assessed Land Value $57,000
   
Assessed Total Value $257,800



Addition Summary 
StoryTypeCodeArea
1.00 LANDING AVERAGE LAND 60
1.00 FRAME DECK AVERAGE FRAM 25
1.00 FRAME DECK AVERAGE FRAM 180
1.00 LANDING AVERAGE-R LAND 1
 
Other Improvements 
UnitsDescriptionItemCodeYear% BadValue
8X8 DIMENSIONS SHED-R 2016 60 400
 


Building Sketch
Photograph
Building Sketch Building Photo
(Click sketch for bigger image)