Detailed Property Information

Building Summary

Data last updated on: 1/1/0001     Ownership current as of: 3/18/2026     Tax Year: 2026
REID 5884016882000

PIN # 5884-01-6882

Location Address Property Description
8958 Lasater RD MIKE HESTER LO:232A BL:4402
   
Property Owner Owner's Mailing Address
ARNOLD, BENJAMIN T;ARNOLD, MICHELE L
8958 LASATER RD
CLEMMONS NC 27012
Parcel
Buildings
Misc Improvements
Land
Deeds
Notes
Sales
Photos
Tax Bill
Map
Building Location Address
8958 Lasater RD
Building Description
SINGLE-FAMILY
Card   of  1
Bldg Type RESIDENTIAL
Units 0
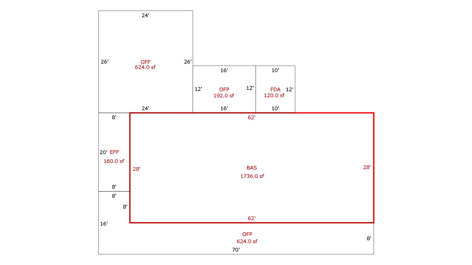
Living Area (SQFT) 1736
Number of Stories 1.00
Style CONVENTIONAL
Foundation MASONRY
Frame FRAME
Exterior VINYL
Const Type
Heating Forced Warm Air
Air Cond CENTRAL
Plumbing Baths (Full):   2
Baths (Half):   0
Extra Fixtures:   2
Total Plumbing Fixtures:   8 
Bedrooms 3
Floor CARPET-HARDWOOD
Roof Cover Metal
Roof Type GABLE
Main Body (SQFT) 1736
Year Built 2018
Additions 5
Effective Year 2020
Remodeled 0
Interior Adj.
Other Features
Building Total & Improvement Details

Grade B-10 110%
Percentage Complete 100
Total Adjusted Replacement Cost New $390,037
Physical Depreciation (% Bad) AVER 4%
Depreciated Value $374,916
Economic Depreciation (% Bad) 0
Functional Depreciation (% Bad) 0
Total Depreciated Value $374,916
Market Area Factor 0.95
Building Value $356,200
Misc Improvements Value $37,000
Total Improvement Value $393,200

Assessed Land Value $87,300
   
Assessed Total Value $480,500



Addition Summary 
StoryTypeCodeArea
1.00 OPEN FRAME PORCH OPEN 192
1.00 FRAME DECK AVERAGE FRAM 120
1.00 OPEN FRAME PORCH OPEN 624
1.00 ENCLOSED FRAME PORCH ENCL 160
1.00 GAR/FRM/FLOOR/FIN GAR/ 624
 
Other Improvements 
UnitsDescriptionItemCodeYear% BadValue
50x24 DIMENSIONS GARAGE-R 2018 14 37000
 


Building Sketch
Photograph
Building Sketch Building Photo
(Click sketch for bigger image)