Detailed Property Information

Building Summary

Data last updated on: 1/1/0001     Ownership current as of: 2/27/2026     Tax Year: 2026
REID 6836250784000

PIN # 6836-25-0784

Location Address Property Description
2505 Druid Hills DR LO:004 BL:1664
   
Property Owner Owner's Mailing Address
HARRIS CULLINS, KELLY JIAVONNIE;CULLINS, MICHAEL ANTHONY
2505 DRUID HILLS DR
WINSTON SALEM NC 27105
Parcel
Buildings
Misc Improvements
Land
Deeds
Notes
Sales
Photos
Tax Bill
Map
Building Location Address
2505 Druid Hills DR
Building Description
SINGLE-FAMILY
Card   of  1
Bldg Type RESIDENTIAL
Units 0
Living Area (SQFT) 1220
Number of Stories 1.00
Style CONVENTIONAL
Foundation MASONRY
Frame FRAME
Exterior ASBESTOS SHINGLE
Const Type
Heating Forced Warm Air
Air Cond NONE
Plumbing Baths (Full):   1
Baths (Half):   0
Extra Fixtures:   0
Total Plumbing Fixtures:   3 
Bedrooms 4
Floor CONCRETE
Roof Cover Asphalt Shingle
Roof Type GABLE
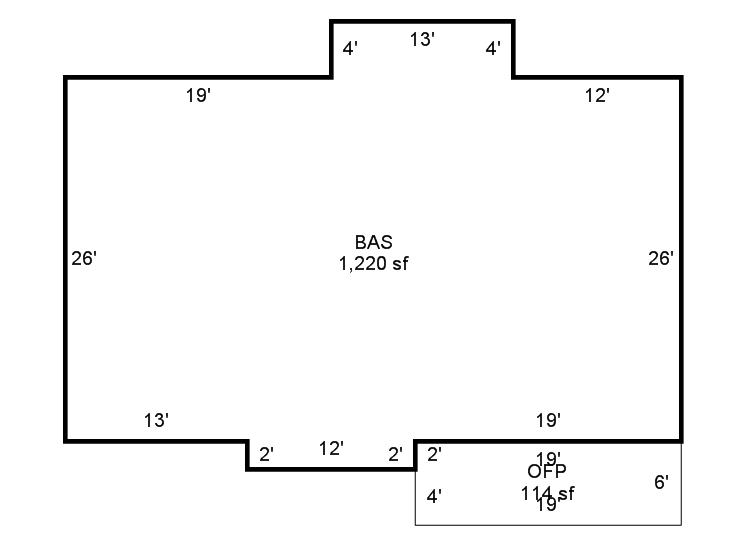
Main Body (SQFT) 1220
Year Built 1940
Additions 2
Effective Year 1980
Remodeled 0
Interior Adj.
Other Features
Building Total & Improvement Details

Grade C-5 95%
Percentage Complete 100
Total Adjusted Replacement Cost New $210,861
Physical Depreciation (% Bad) AVER 63%
Depreciated Value $78,019
Economic Depreciation (% Bad) 0
Functional Depreciation (% Bad) 0
Total Depreciated Value $78,019
Market Area Factor 1.10
Building Value $85,800
Misc Improvements Value $300
Total Improvement Value $86,100

Assessed Land Value $15,000
   
Assessed Total Value $101,100



Addition Summary 
StoryTypeCodeArea
1.00 OPEN FRAME PORCH OPEN 114
1.00 BASEMENT-UNFIN-CF BASE 1220
 
Other Improvements 
UnitsDescriptionItemCodeYear% BadValue
18x10 DIMENSIONS GAR/FRM/FLOOR/FIN-R 2016 18 300
 


Building Sketch
Photograph
Building Sketch Building Photo
(Click sketch for bigger image)