Detailed Property Information

Building Summary

Data last updated on: 1/1/0001     Ownership current as of: 3/18/2026     Tax Year: 2026
REID 6844264369000

PIN # 6844-26-4369

Location Address Property Description
2001 Andover ST LO:101A BL:1705
   
Property Owner Owner's Mailing Address
CLAY, TONYA
2001 ANDOVER ST
WINSTON SALEM NC 27107
Parcel
Buildings
Misc Improvements
Land
Deeds
Notes
Sales
Photos
Tax Bill
Map
Building Location Address
2001 Andover ST
Building Description
SINGLE-FAMILY
Card   of  1
Bldg Type RESIDENTIAL
Units 0
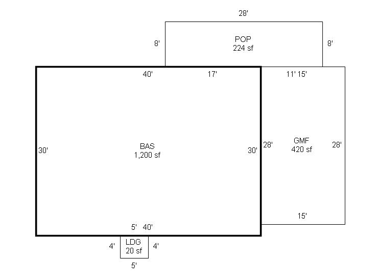
Living Area (SQFT) 1200
Number of Stories 1.00
Style CONVENTIONAL
Foundation SLAB
Frame MASONRY
Exterior BRICK
Const Type
Heating Heat Pump
Air Cond HEAT PUMP
Plumbing Baths (Full):   1
Baths (Half):   0
Extra Fixtures:   0
Total Plumbing Fixtures:   3 
Bedrooms 2
Floor CARPET-CONCRETE
Roof Cover Asphalt Shingle
Roof Type GABLE
Main Body (SQFT) 1200
Year Built 1978
Additions 4
Effective Year 1985
Remodeled 0
Interior Adj.
Other Features
Building Total & Improvement Details

Grade C-5 95%
Percentage Complete 100
Total Adjusted Replacement Cost New $210,974
Physical Depreciation (% Bad) AVER 55%
Depreciated Value $95,051
Economic Depreciation (% Bad) 0
Functional Depreciation (% Bad) 0
Total Depreciated Value $95,051
Market Area Factor 1.00
Building Value $95,100
Misc Improvements Value $400
Total Improvement Value $95,500

Assessed Land Value $21,800
   
Assessed Total Value $117,300



Addition Summary 
StoryTypeCodeArea
1.00 PATIO LC PATI 224
1.00 GAR/MAS/FLOOR/FIN GAR/ 420
1.00 LANDING GOOD LAND 20
1.00 LANDING GOOD-R LAND 1
 
Other Improvements 
UnitsDescriptionItemCodeYear% BadValue
16x12 DIMENSIONS SHED-R 2017 53 400
 


Building Sketch
Photograph
Building Sketch Building Photo
(Click sketch for bigger image)