Detailed Property Information

Building Summary

Data last updated on: 1/1/0001     Ownership current as of: 2/24/2026     Tax Year: 2026
REID 6887806333000

PIN # 6887-80-6333

Location Address Property Description
1035 3 North Main ST LO:445 BL:5410
   
Property Owner Owner's Mailing Address
VTC NC LLC
5300 TORWOOD COURT
GREENSBORO NC 27409
Parcel
Buildings
Misc Improvements
Land
Deeds
Notes
Sales
Photos
Tax Bill
Map
Building Location Address
1035 North Main ST
Card   of  6        Section   of  1
Building Details

Building Name County Line Grocery-BAKER CONSTRUCTION
Primary Occupancy Type 13
Primary Occupancy 13-353-Retail Store
Primary Class C
Primary Quality Low
Year Built 1967
Effective Year 1984
Physical Depreciation (Rating) AVERAGE
Physical Depreciation (% Bad) 72.00
Economic Depreciation (% Bad)
Functional Depreciation (% Bad)
Gross Leasable Area (SQFT) 1928
Remodeled Year 1982
Total Stories 1

Construction BRICK/1-STY
Foundation Concrete
Insulation ROOF
Roof Cover Shingles
Roof Type Gable
Exterior Finish Brick/Block
Section Details

Occupancy Type 13


Heat 603-Forced Air Unit
Occupancy 13-353-Retail Store
Quality Low
Exterior Walls 2-Default Wall
Depreciation 80%
Depreciation MSVPO - COMM ONLY
Class C
Building Total & Improvement Details

Total Adjusted Replacement Cost New $165,423
Physical Depreciation (% Bad) AVERAGE 72.00
Depreciated Value $34,516
Economic Depreciation (% Bad) 0
Functional Depreciation (% Bad) 0
Total Depreciated Value $34,516
Market Area Factor 1.00
Building Value $34,500
Misc Improvements Value $15,300
Total Improvement Value $49,800

Assessed Land Value $431,400
   
Assessed Total Value $1,059,700


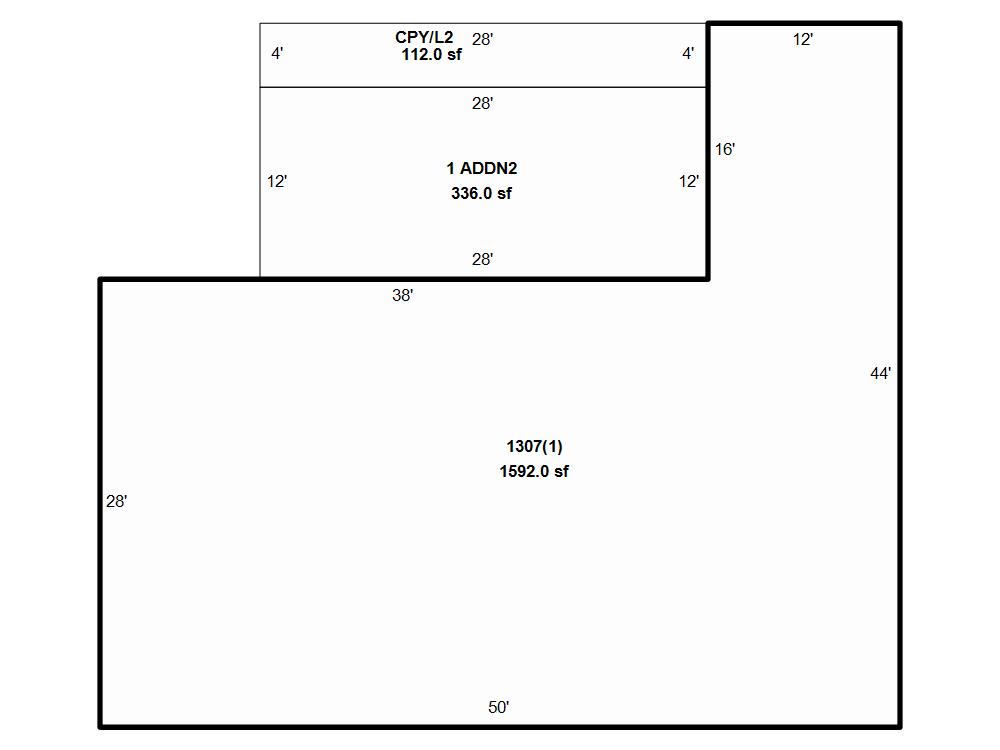
Addition Summary 
StoryTypeCodeArea
1.00 ONE STY ADDNS 2 ONE- 336
1.00 CAN/LANDING 2 CAN/ 112
 
Other Improvements 
UnitsDescriptionItemCodeYear% BadValue
7500 SIZE PAVING-ASP-N-BASE-1-C 2014 80 4800
30x43 DIMENSIONS UTILITY-4-C 1998 90 4100
630 SIZE FENCE-6/TPRL/BWIRE-C 2002 80 2000
30x45 DIMENSIONS BARN-1-C 1990 90 700
22x70 DIMENSIONS OUTBUILDING-R 1980 90 1200
14x28 DIMENSIONS OPEN-SHED-R 1970 90 200
4 UNITS STORAGE-BLDG-R 1980 90
33x24 DIMENSIONS SHOP-(MACHINE) 1992 90 1000
24x16 DIMENSIONS OUTBUILDING-R 1951 90
20x20 DIMENSIONS OPEN-SHED-R 1951 90 200
12x20 DIMENSIONS SHED-R 2008 80 500
18x18 DIMENSIONS CARPORT METAL-R 2008 80 600
 


Building Sketch
Photograph
Building Sketch Building Photo
(Click sketch for bigger image)