Detailed Property Information

Building Summary

Data last updated on: 1/1/0001     Ownership current as of: 12/17/2025     Tax Year: 2026
REID 6825593036000

PIN # 6825-59-3036

Location Address Property Description
1700 Virginia RD
   
Property Owner Owner's Mailing Address
DILLION, TIMOTHY JR;DILLION, TAYLOR DAVIS
1700 VIRGINIA RD
WINSTON SALEM NC 27104

Value subject to change, property assessment under review

Parcel
Buildings
Misc Improvements
Land
Deeds
Notes
Sales
Photos
Tax Bill
Map
Building Location Address
1700 Virginia RD
Building Description
SINGLE-FAMILY
Card   of  1
Bldg Type RESIDENTIAL
Units 0
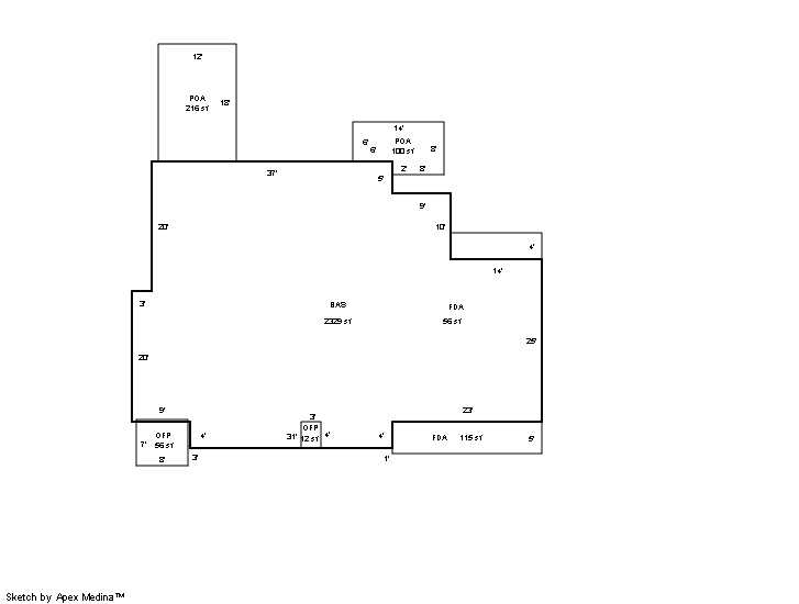
Living Area (SQFT) 2329
Number of Stories 1.00
Style CONVENTIONAL
Foundation MASONRY
Frame MASONRY
Exterior BRICK
Const Type
Heating Forced Warm Air
Air Cond CENTRAL
Plumbing Baths (Full):   4
Baths (Half):   0
Extra Fixtures:   0
Total Plumbing Fixtures:   12 
Bedrooms 4
Floor CARPET-TILE
Roof Cover Asphalt Shingle
Roof Type GABLE
Main Body (SQFT) 2329
Year Built 1933
Additions 9
Effective Year 1978
Remodeled 0
Interior Adj.
Other Features
Building Total & Improvement Details

Grade B+5 128%
Percentage Complete 100
Total Adjusted Replacement Cost New
Physical Depreciation (% Bad) AVER 59%
Depreciated Value
Economic Depreciation (% Bad) 0
Functional Depreciation (% Bad) 0
Total Depreciated Value
Market Area Factor 1.03
Building Value
Misc Improvements Value
Total Improvement Value

Assessed Land Value
   
Assessed Total Value



Addition Summary 
StoryTypeCodeArea
1.00 PATIO AVERAGE PATI 216
1.00 OPEN FRAME PORCH OPEN 56
1.00 OPEN FRAME PORCH OPEN 12
1.00 PATIO AVERAGE PATI 100
1.00 FRAME DECK AVERAGE FRAM 115
1.00 FRAME DECK AVERAGE FRAM 56
1.00 CARPORT AVERAGE CARP 575
1.00 BASEMENT-FIN-LC-R BASE 400
1.00 BASEMENT-UNFIN-CF BASE 1046
 
Other Improvements 
UnitsDescriptionItemCodeYear% BadValue
24x22 DIMENSIONS CPA-R 2014 44
24x4 DIMENSIONS UTF-R 2016 36
270 SIZE OFP-R 2016 36
 


Building Sketch
Photograph
Building Sketch Building Photo
(Click sketch for bigger image)