Detailed Property Information

Building Summary

Data last updated on: 1/1/0001     Ownership current as of: 10/12/2025     Tax Year: 2025
REID 6844161865000

PIN # 6844-16-1865

Location Address Property Description
1900 Peachtree ST LO:009B BL:1893
   
Property Owner Owner's Mailing Address
MAG PROPERTIES OF THE CAROLINAS LLC
641 AKRON DR
WINSTON SALEM NC 27105
Parcel
Buildings
Misc Improvements
Land
Deeds
Notes
Sales
Photos
Tax Bill
Map
Building Location Address
1900 Peachtree ST
Building Description
SINGLE-FAMILY
Card   of  1
Bldg Type RESIDENTIAL
Units 0
Living Area (SQFT) 1647
Number of Stories 1.50
Style CONVENTIONAL
Foundation MASONRY
Frame FRAME
Exterior STUCCO/FRM
Const Type
Heating Forced Warm Air
Air Cond NONE
Plumbing Baths (Full):   1
Baths (Half):   1
Extra Fixtures:   0
Total Plumbing Fixtures:   5 
Bedrooms 3
Floor CARPET
Roof Cover Asphalt Shingle
Roof Type GABLE
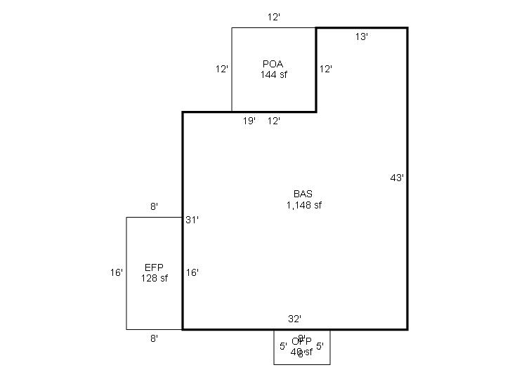
Main Body (SQFT) 1148
Year Built 1947
Additions 5
Effective Year 1990
Remodeled 0
Interior Adj.
Other Features
Building Total & Improvement Details

Grade C-5 95%
Percentage Complete 100
Total Adjusted Replacement Cost New $234,487
Physical Depreciation (% Bad) FAIR 52%
Depreciated Value $112,554
Economic Depreciation (% Bad) 0
Functional Depreciation (% Bad) 0
Total Depreciated Value $112,554
Market Area Factor 1.00
Building Value $112,600
Misc Improvements Value $4,000
Total Improvement Value $116,600

Assessed Land Value $18,100
   
Assessed Total Value $134,700



Addition Summary 
StoryTypeCodeArea
1.00 PATIO AVERAGE PATI 144
1.00 ENCLOSED FRAME PORCH ENCL 128
1.00 OPEN FRAME PORCH OPEN 40
1.00 UPPER STORY FINISHED UPPE 499
1.00 BASEMENT-UNFIN-CF BASE 576
 
Other Improvements 
UnitsDescriptionItemCodeYear% BadValue
20x20 DIMENSIONS GAR/FRM/FLOOR/FIN-R 1947 90 1400
24x24 DIMENSIONS GAR/CB/FLOOR/FIN-R 2017 15 2600
 


Building Sketch
Photograph
Building Sketch Building Photo
(Click sketch for bigger image)