Detailed Property Information

Building Summary

Data last updated on: 1/1/0001     Ownership current as of: 12/17/2025     Tax Year: 2025
REID 6815764415000

PIN # 6815-76-4415

Location Address Property Description
235 Fairfax DR LO:034 BL:1895
   
Property Owner Owner's Mailing Address
BROWN, ELIZABETH ASHFORD;BROWN, MATTHEW CLAYTON
235 FAIRFAX DR
WINSTON SALEM NC 27104
Parcel
Buildings
Misc Improvements
Land
Deeds
Notes
Sales
Photos
Tax Bill
Map
Building Location Address
235 Fairfax DR
Building Description
SINGLE-FAMILY
Card   of  1
Bldg Type RESIDENTIAL
Units 0
Living Area (SQFT) 2799
Number of Stories 1.00
Style RANCH
Foundation MASONRY
Frame MASONRY
Exterior BRICK
Const Type
Heating Forced Warm Air
Air Cond HEAT PUMP
Plumbing Baths (Full):   3
Baths (Half):   1
Extra Fixtures:   0
Total Plumbing Fixtures:   11 
Bedrooms 3
Floor CONCRETE-HARDWOOD
Roof Cover Asphalt Shingle
Roof Type GABLE
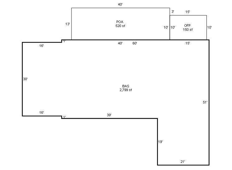
Main Body (SQFT) 2799
Year Built 1951
Additions 2
Effective Year 1981
Remodeled 1992
Interior Adj.
Other Features
Building Total & Improvement Details

Grade B+15 140%
Percentage Complete 100
Total Adjusted Replacement Cost New $625,546
Physical Depreciation (% Bad) GOOD 46%
Depreciated Value $337,930
Economic Depreciation (% Bad) 0
Functional Depreciation (% Bad) 0
Total Depreciated Value $337,930
Market Area Factor 1.03
Building Value $348,100
Misc Improvements Value $17,000
Total Improvement Value $365,100

Assessed Land Value $412,500
   
Assessed Total Value $777,600



Addition Summary 
StoryTypeCodeArea
1.00 OPEN FRAME PORCH OPEN 150
1.00 PATIO AVERAGE PATI 520
 
Other Improvements 
UnitsDescriptionItemCodeYear% BadValue
24x24 DIMENSIONS GAR/MAS/FLOOR/FIN-R 2008 34 17000
 


Building Sketch
Photograph
Building Sketch Building Photo
(Click sketch for bigger image)