Detailed Property Information

Building Summary

Data last updated on: 1/1/0001     Ownership current as of: 12/17/2025     Tax Year: 2025
REID 6815752095000

PIN # 6815-75-2095

Location Address Property Description
360 Lynn AVE LO:071 BL:1897
   
Property Owner Owner's Mailing Address
DILLON, ALEXANDER BRADLEY;DILLON, EMILEE KING
360 LYNN AVENUE
WINSTON SALEM NC 27104
Parcel
Buildings
Misc Improvements
Land
Deeds
Notes
Sales
Photos
Tax Bill
Map
Building Location Address
360 Lynn AVE
Building Description
SINGLE-FAMILY
Card   of  1
Bldg Type RESIDENTIAL
Units 0
Living Area (SQFT) 3468
Number of Stories 1.50
Style RANCH
Foundation MASONRY
Frame MASONRY
Exterior BRICK
Const Type
Heating Heat Pump
Air Cond HEAT PUMP
Plumbing Baths (Full):   4
Baths (Half):   1
Extra Fixtures:   0
Total Plumbing Fixtures:   14 
Bedrooms 5
Floor CARPET-CONCRETE
Roof Cover Asphalt Shingle
Roof Type HIP
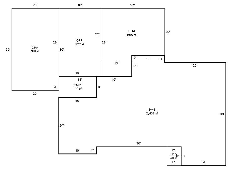
Main Body (SQFT) 2468
Year Built 1950
Additions 9
Effective Year 1983
Remodeled 2004
Interior Adj.
Other Features
Building Total & Improvement Details

Grade B-10 110%
Percentage Complete 100
Total Adjusted Replacement Cost New $674,058
Physical Depreciation (% Bad) AVER 51%
Depreciated Value $330,288
Economic Depreciation (% Bad) 0
Functional Depreciation (% Bad) 0
Total Depreciated Value $330,288
Market Area Factor 1.03
Building Value $340,200
Misc Improvements Value $1,300
Total Improvement Value $341,500

Assessed Land Value $330,000
   
Assessed Total Value $671,500



Addition Summary 
StoryTypeCodeArea
1.00 LANDING GOOD LAND 48
1.00 ENC MASONRY PORCH ENC- 144
1.00 OPEN FRAME PORCH OPEN 522
1.00 CARPORT AVERAGE CARP 700
1.00 PATIO AVERAGE PATI 566
1.00 UPPER STORY FINISHED UPPE 1000
1.00 BASEMENT-FIN-AVG-NR BASE 637
1.00 BASEMENT-UNFIN-CF BASE 534
1.00 LANDING GOOD-R LAND 1
 
Other Improvements 
UnitsDescriptionItemCodeYear% BadValue
22x12 DIMENSIONS UTILITY-BLDG-R 2016 36 1300
4x6 DIMENSIONS OFP-R 1960 90
 


Building Sketch
Photograph
Building Sketch Building Photo
(Click sketch for bigger image)