Detailed Property Information

Building Summary

Data last updated on: 1/1/0001     Ownership current as of: 12/17/2025     Tax Year: 2025
REID 6825284821000

PIN # 6825-28-4821

Location Address Property Description
2200 Forest DR LO:009 BL:1913
   
Property Owner Owner's Mailing Address
2200 FOREST DRIVE TRUST;KING, CHRISTOPHER TRUSTEE
2200 FOREST DR
WINSTON SALEM NC 27104
Parcel
Buildings
Misc Improvements
Land
Deeds
Notes
Sales
Photos
Tax Bill
Map
Building Location Address
2200 Forest DR
Building Description
SINGLE-FAMILY
Card   of  1
Bldg Type RESIDENTIAL
Units 0
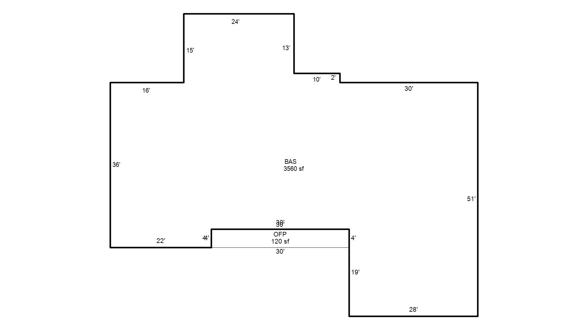
Living Area (SQFT) 3560
Number of Stories 1.00
Style RANCH
Foundation MASONRY
Frame MASONRY
Exterior BRICK
Const Type
Heating Heat Pump
Air Cond HEAT PUMP
Plumbing Baths (Full):   2
Baths (Half):   2
Extra Fixtures:   2
Total Plumbing Fixtures:   12 
Bedrooms 5
Floor CARPET-HARDWOOD
Roof Cover Asphalt Shingle
Roof Type GABLE
Main Body (SQFT) 3560
Year Built 1975
Additions 2
Effective Year 2017
Remodeled 0
Interior Adj.
Other Features
Building Total & Improvement Details

Grade B+20 146%
Percentage Complete 100
Total Adjusted Replacement Cost New $809,339
Physical Depreciation (% Bad) AVER 6%
Depreciated Value $760,779
Economic Depreciation (% Bad) 0
Functional Depreciation (% Bad) 0
Total Depreciated Value $760,779
Market Area Factor 1.03
Building Value $783,600
Misc Improvements Value $19,300
Total Improvement Value $802,900

Assessed Land Value $370,500
   
Assessed Total Value $1,173,400



Addition Summary 
StoryTypeCodeArea
1.00 OPEN FRAME PORCH OPEN 120
1.00 PATIO GOOD PATI 652
 
Other Improvements 
UnitsDescriptionItemCodeYear% BadValue
32x24 DIMENSIONS GAR/MAS/FLOOR/FIN-R 2003 44 19300
 


Building Sketch
Photograph
Building Sketch Building Photo
(Click sketch for bigger image)