Detailed Property Information

Building Summary

Data last updated on: 1/1/0001     Ownership current as of: 3/20/2026     Tax Year: 2026
REID 6817316479000

PIN # 6817-31-6479

Location Address Property Description
102 Woodbriar RD LO:005C BL:2075
   
Property Owner Owner's Mailing Address
CANO, ALBERTO A;CANO, LIVIA M
102 WOODBRIAR RD
WINSTON SALEM NC 27106
Parcel
Buildings
Misc Improvements
Land
Deeds
Notes
Sales
Photos
Tax Bill
Map
Building Location Address
102 Woodbriar RD
Building Description
SINGLE-FAMILY
Card   of  1
Bldg Type RESIDENTIAL
Units 0
Living Area (SQFT) 1966
Number of Stories 2.00
Style CONVENTIONAL
Foundation MASONRY
Frame FRAME
Exterior BRICK
Const Type
Heating Forced Warm Air
Air Cond CENTRAL
Plumbing Baths (Full):   2
Baths (Half):   1
Extra Fixtures:   2
Total Plumbing Fixtures:   10 
Bedrooms 4
Floor CARPET
Roof Cover Asphalt Shingle
Roof Type GABLE
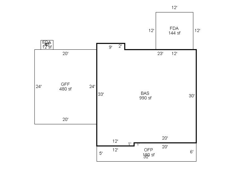
Main Body (SQFT) 990
Year Built 1998
Additions 5
Effective Year 2010
Remodeled 0
Interior Adj.
Other Features
Building Total & Improvement Details

Grade C+10 110%
Percentage Complete 100
Total Adjusted Replacement Cost New $341,827
Physical Depreciation (% Bad) AVER 15%
Depreciated Value $290,765
Economic Depreciation (% Bad) 5
Functional Depreciation (% Bad) 0
Total Depreciated Value $276,227
Market Area Factor 1.00
Building Value $276,200
Misc Improvements Value $1,000
Total Improvement Value $277,200

Assessed Land Value $46,500
   
Assessed Total Value $323,700



Addition Summary 
StoryTypeCodeArea
1.00 OPEN FRAME PORCH OPEN 180
1.00 GAR/FRM/FLOOR/FIN GAR/ 480
1.00 FRAME DECK AVERAGE FRAM 12
1.00 FRAME DECK AVERAGE FRAM 144
1.00 UPPER STORY FINISHED UPPE 976
 
Other Improvements 
UnitsDescriptionItemCodeYear% BadValue
14x10 DIMENSIONS SHED-R 1998 80 600
18x30 DIMENSIONS POP-R 1998 90 400
 


Building Sketch
Photograph
Building Sketch Building Photo
(Click sketch for bigger image)