Detailed Property Information

Building Summary

Data last updated on: 1/1/0001     Ownership current as of: 3/5/2026     Tax Year: 2026
REID 6818014280000

PIN # 6818-01-4280

Location Address Property Description
3703 Maverick ST LO:037 BL:2089
   
Property Owner Owner's Mailing Address
CHAVEZ, SERGIO FERNANDEZ;TORRES, SONIA;FERNANDEZ, MIGUEL
3703 MAVERICK ST
WINSTON SALEM NC 27103

Value subject to change, property assessment under review

Parcel
Buildings
Misc Improvements
Land
Deeds
Notes
Sales
Photos
Tax Bill
Map
Building Location Address
3703 Maverick ST
Building Description
SINGLE-FAMILY
Card   of  1
Bldg Type RESIDENTIAL
Units 0
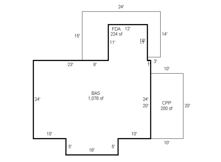
Living Area (SQFT) 1076
Number of Stories 1.00
Style CONVENTIONAL
Foundation MASONRY
Frame FRAME
Exterior VINYL
Const Type
Heating Wall/Furnace
Air Cond NONE
Plumbing Baths (Full):   1
Baths (Half):   0
Extra Fixtures:   0
Total Plumbing Fixtures:   3 
Bedrooms 3
Floor CARPET-HARDWOOD
Roof Cover Asphalt Shingle
Roof Type GABLE
Main Body (SQFT) 1076
Year Built 1957
Additions 2
Effective Year 1993
Remodeled 0
Interior Adj.
Other Features
Building Total & Improvement Details

Grade C-5 95%
Percentage Complete 100
Total Adjusted Replacement Cost New
Physical Depreciation (% Bad) AVER 40%
Depreciated Value
Economic Depreciation (% Bad) 0
Functional Depreciation (% Bad) 0
Total Depreciated Value
Market Area Factor 1.00
Building Value
Misc Improvements Value
Total Improvement Value

Assessed Land Value
   
Assessed Total Value



Addition Summary 
StoryTypeCodeArea
1.00 FRAME DECK AVERAGE FRAM 224
1.00 CARPORT LC CARP 200
 
Other Improvements 
UnitsDescriptionItemCodeYear% BadValue
14x10 DIMENSIONS SHED-R 1968 80
 


Building Sketch
Photograph
Building Sketch Building Photo
(Click sketch for bigger image)