Detailed Property Information

Building Summary

Data last updated on: 1/1/0001     Ownership current as of: 11/15/2025     Tax Year: 2025
REID 6846007703000

PIN # 6846-00-7703

Location Address Property Description
2333 Slater AVE LO:008 BL:2458
   
Property Owner Owner's Mailing Address
SANTOS, ERICA Y;SANCHEZ GOMEZ, KEVIN JOSUE
2333 SLATER AVE
WINSTON SALEM NC 27101
Parcel
Buildings
Misc Improvements
Land
Deeds
Notes
Sales
Photos
Tax Bill
Map
Building Location Address
2333 Slater AVE
Building Description
SINGLE-FAMILY
Card   of  1
Bldg Type RESIDENTIAL
Units 0
Living Area (SQFT) 1046
Number of Stories 1.00
Style CONVENTIONAL
Foundation MASONRY
Frame MASONRY
Exterior BRICK
Const Type
Heating Heat Pump
Air Cond HEAT PUMP
Plumbing Baths (Full):   1
Baths (Half):   0
Extra Fixtures:   0
Total Plumbing Fixtures:   3 
Bedrooms 3
Floor CONCRETE
Roof Cover Asphalt Shingle
Roof Type GABLE
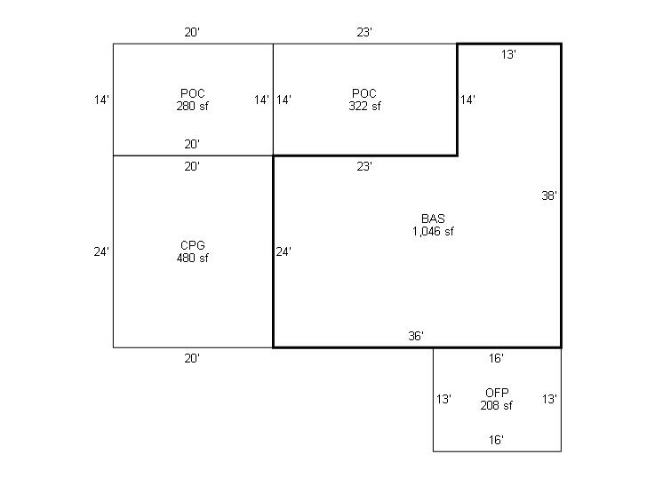
Main Body (SQFT) 1046
Year Built 1954
Additions 5
Effective Year 1999
Remodeled 0
Interior Adj.
Other Features
Building Total & Improvement Details

Grade C-10 90%
Percentage Complete 100
Total Adjusted Replacement Cost New $212,861
Physical Depreciation (% Bad) AVER 29%
Depreciated Value $151,131
Economic Depreciation (% Bad) 0
Functional Depreciation (% Bad) 0
Total Depreciated Value $151,131
Market Area Factor 1.06
Building Value $160,200
Misc Improvements Value
Total Improvement Value $160,200

Assessed Land Value $12,000
   
Assessed Total Value $172,200



Addition Summary 
StoryTypeCodeArea
1.00 PATIO COVERED PATI 322
1.00 CARPORT GOOD CARP 480
1.00 OPEN FRAME PORCH OPEN 208
1.00 PATIO COVERED PATI 280
1.00 BASEMENT-UNFIN-CF BASE 523
 
Other Improvements 
 


Building Sketch
Photograph
Building Sketch Building Photo
(Click sketch for bigger image)