Detailed Property Information

Building Summary

Data last updated on: 1/1/0001     Ownership current as of: 11/15/2025     Tax Year: 2025
REID 6836919438000

PIN # 6836-91-9438

Location Address Property Description
2101 Gerald ST LO:080 BL:2458
   
Property Owner Owner's Mailing Address
SEGOVIA INVESTMENTS LLC
2203 PLEASANT ST
WINSTON SALEM NC 27101
Parcel
Buildings
Misc Improvements
Land
Deeds
Notes
Sales
Photos
Tax Bill
Map
Building Location Address
2101 Gerald ST
Building Description
SINGLE-FAMILY
Card   of  1
Bldg Type RESIDENTIAL
Units 0
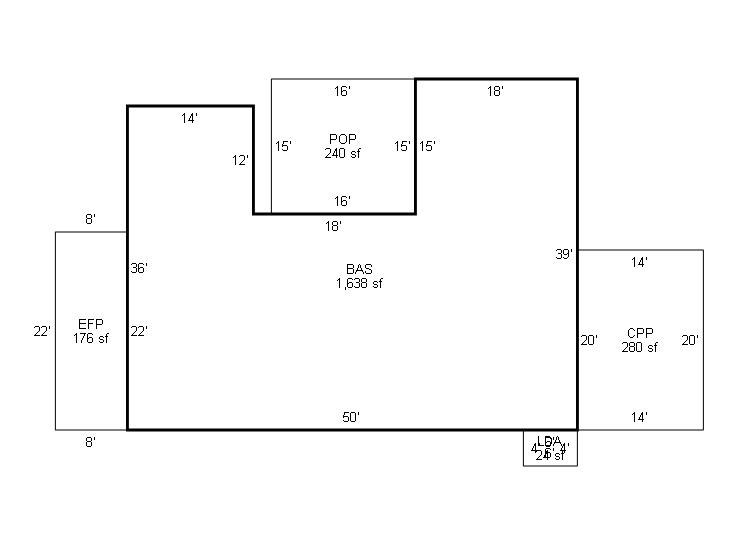
Living Area (SQFT) 1638
Number of Stories 1.00
Style CONVENTIONAL
Foundation MASONRY
Frame FRAME
Exterior ALUMINUM
Const Type
Heating Forced Warm Air
Air Cond NONE
Plumbing Baths (Full):   1
Baths (Half):   0
Extra Fixtures:   0
Total Plumbing Fixtures:   3 
Bedrooms 5
Floor CARPET-HARDWOOD
Roof Cover Asphalt Shingle
Roof Type GABLE
Main Body (SQFT) 1638
Year Built 1955
Additions 7
Effective Year 1978
Remodeled 0
Interior Adj.
Other Features
Building Total & Improvement Details

Grade C-5 95%
Percentage Complete 100
Total Adjusted Replacement Cost New $279,131
Physical Depreciation (% Bad) AVER 66%
Depreciated Value $94,905
Economic Depreciation (% Bad) 0
Functional Depreciation (% Bad) 0
Total Depreciated Value $94,905
Market Area Factor 1.06
Building Value $100,600
Misc Improvements Value $100
Total Improvement Value $100,700

Assessed Land Value $12,000
   
Assessed Total Value $112,700



Addition Summary 
StoryTypeCodeArea
1.00 LANDING AVERAGE LAND 24
1.00 PATIO LC PATI 240
1.00 ENCLOSED FRAME PORCH ENCL 176
1.00 CARPORT LC CARP 280
1.00 BASEMENT-FIN-AVG-NR BASE 358
1.00 BASEMENT-UNFIN-CF BASE 486
1.00 LANDING AVERAGE-R LAND 1
 
Other Improvements 
UnitsDescriptionItemCodeYear% BadValue
48 SIZE SHED-R 1955 80 100
 


Building Sketch
Photograph
Building Sketch Building Photo
(Click sketch for bigger image)