Detailed Property Information

Building Summary

Data last updated on: 1/1/0001     Ownership current as of: 4/3/2026     Tax Year: 2026
REID 6816513444000

PIN # 6816-51-3444

Location Address Property Description
3119 Burkeshore RD LO:016 BL:2477
   
Property Owner Owner's Mailing Address
WAITE, ALEXANDER M;WAITE, KELLEY C
3119 BURKESHORE RD
WINSTON SALEM NC 27106
Parcel
Buildings
Misc Improvements
Land
Deeds
Notes
Sales
Photos
Tax Bill
Map
Building Location Address
3119 Burkeshore RD
Building Description
SINGLE-FAMILY
Card   of  1
Bldg Type RESIDENTIAL
Units 0
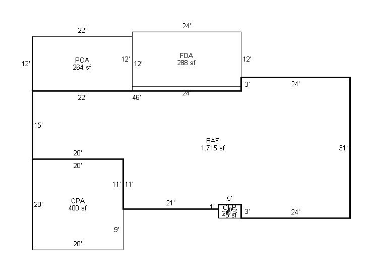
Living Area (SQFT) 1715
Number of Stories 1.00
Style RANCH
Foundation MASONRY
Frame MASONRY
Exterior BRICK
Const Type
Heating Forced Warm Air
Air Cond CENTRAL
Plumbing Baths (Full):   2
Baths (Half):   1
Extra Fixtures:   2
Total Plumbing Fixtures:   10 
Bedrooms 3
Floor CARPET-HARDWOOD
Roof Cover Asphalt Shingle
Roof Type GABLE
Main Body (SQFT) 1715
Year Built 1962
Additions 6
Effective Year 2002
Remodeled 0
Interior Adj.
Other Features
Building Total & Improvement Details

Grade B-10 110%
Percentage Complete 100
Total Adjusted Replacement Cost New $396,383
Physical Depreciation (% Bad) AVER 21%
Depreciated Value $313,143
Economic Depreciation (% Bad) 0
Functional Depreciation (% Bad) 0
Total Depreciated Value $313,143
Market Area Factor 1.00
Building Value $313,100
Misc Improvements Value
Total Improvement Value $313,100

Assessed Land Value $107,300
   
Assessed Total Value $420,400



Addition Summary 
StoryTypeCodeArea
1.00 PATIO AVERAGE PATI 264
1.00 CARPORT AVERAGE CARP 400
1.00 OPEN FRAME PORCH OPEN 15
1.00 FRAME DECK AVERAGE FRAM 288
1.00 BASEMENT-FIN-LC-NR BASE 333
1.00 BASEMENT-UNFIN-CF BASE 1382
 
Other Improvements 
 


Building Sketch
Photograph
Building Sketch Building Photo
(Click sketch for bigger image)