Detailed Property Information

Building Summary

Data last updated on: 1/1/0001     Ownership current as of: 3/20/2026     Tax Year: 2026
REID 6817200829000

PIN # 6817-20-0829

Location Address Property Description
830 Duckview CT LO:011 BL:2978
   
Property Owner Owner's Mailing Address
TWORKOWSKI, MELISSA MARY;WALKER, LARRY
830 DUCKVIEW CT
WINSTON SALEM NC 27106
Parcel
Buildings
Misc Improvements
Land
Deeds
Notes
Sales
Photos
Tax Bill
Map
Building Location Address
830 Duckview CT
Building Description
SINGLE-FAMILY
Card   of  1
Bldg Type RESIDENTIAL
Units 0
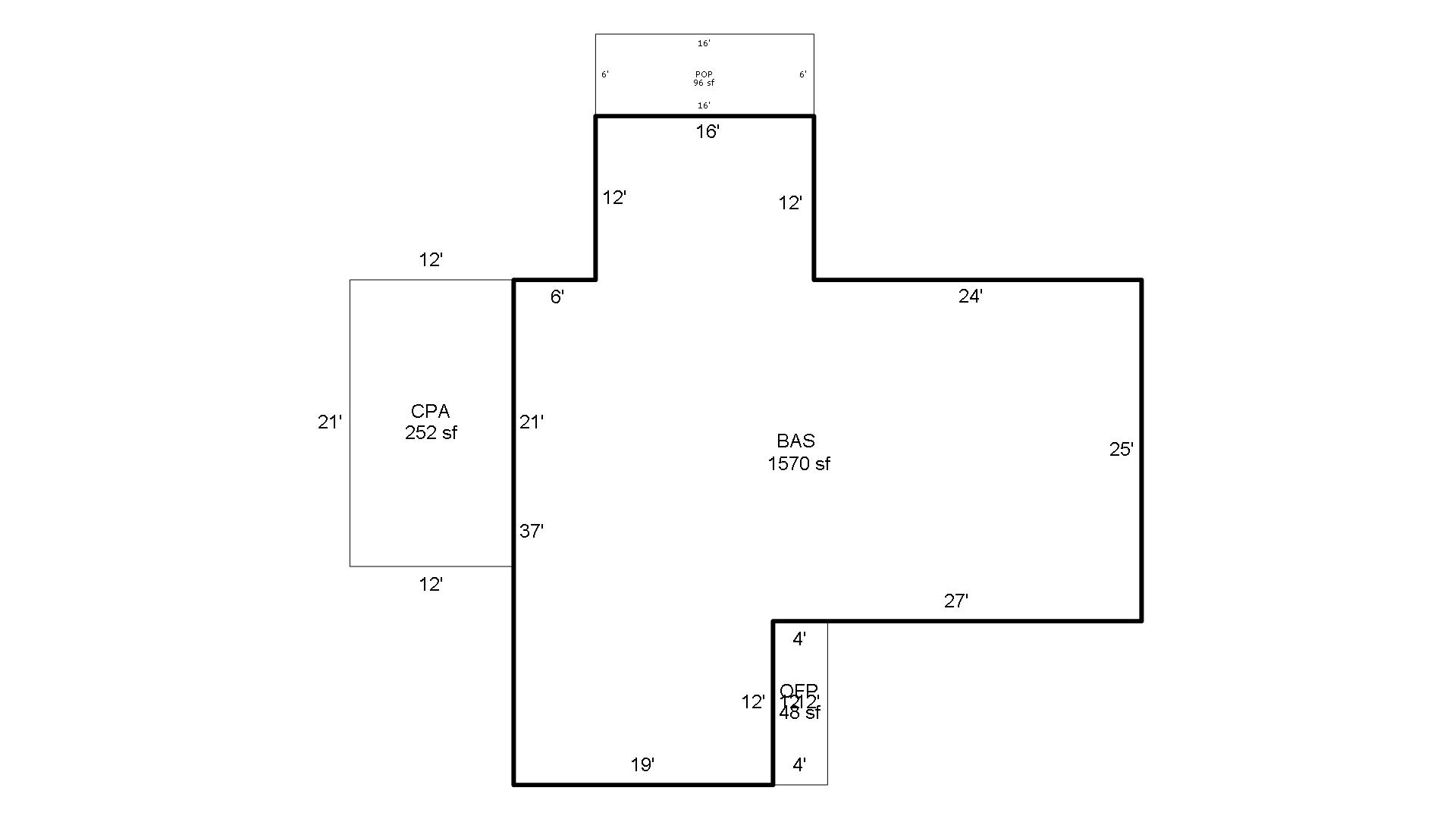
Living Area (SQFT) 1570
Number of Stories 1.00
Style RANCH
Foundation SLAB
Frame MASONRY
Exterior BRICK
Const Type
Heating Forced Warm Air
Air Cond CENTRAL
Plumbing Baths (Full):   2
Baths (Half):   0
Extra Fixtures:   0
Total Plumbing Fixtures:   6 
Bedrooms 3
Floor CARPET-CONCRETE
Roof Cover Asphalt Shingle
Roof Type GABLE
Main Body (SQFT) 1570
Year Built 1970
Additions 3
Effective Year 1997
Remodeled 0
Interior Adj.
Other Features
Building Total & Improvement Details

Grade C 100%
Percentage Complete 100
Total Adjusted Replacement Cost New $262,456
Physical Depreciation (% Bad) AVER 33%
Depreciated Value $175,846
Economic Depreciation (% Bad) 0
Functional Depreciation (% Bad) 0
Total Depreciated Value $175,846
Market Area Factor 1.00
Building Value $175,800
Misc Improvements Value $3,600
Total Improvement Value $179,400

Assessed Land Value $46,500
   
Assessed Total Value $225,900



Addition Summary 
StoryTypeCodeArea
1.00 OPEN FRAME PORCH OPEN 48
1.00 CARPORT AVERAGE CARP 252
1.00 PATIO LC PATI 96
 
Other Improvements 
UnitsDescriptionItemCodeYear% BadValue
32x16 DIMENSIONS PL-NON-DIVING-VINYL-R 2014 73 3200
613 SIZE POOL-DECK-CONCRETE-R 2014 73 400
 


Building Sketch
Photograph
Building Sketch Building Photo
(Click sketch for bigger image)