Detailed Property Information

Building Summary

Data last updated on: 1/1/0001     Ownership current as of: 3/20/2026     Tax Year: 2026
REID 6848118464000

PIN # 6848-11-8464

Location Address Property Description
1632 Sanford DR LO:079 BL:3024
   
Property Owner Owner's Mailing Address
ACOCELLA, JACLYN;RUTLEDGE, JASON ELLIS
1632 SANFORD DR
WINSTON SALEM NC 27105
Parcel
Buildings
Misc Improvements
Land
Deeds
Notes
Sales
Photos
Tax Bill
Map
Building Location Address
1632 Sanford DR
Building Description
SINGLE-FAMILY
Card   of  1
Bldg Type RESIDENTIAL
Units 0
Living Area (SQFT) 1705
Number of Stories 1.00
Style CONVENTIONAL
Foundation MASONRY
Frame MASONRY
Exterior BRICK
Const Type
Heating Forced Warm Air
Air Cond CENTRAL
Plumbing Baths (Full):   2
Baths (Half):   0
Extra Fixtures:   0
Total Plumbing Fixtures:   6 
Bedrooms 3
Floor CONCRETE
Roof Cover Asphalt Shingle
Roof Type GABLE
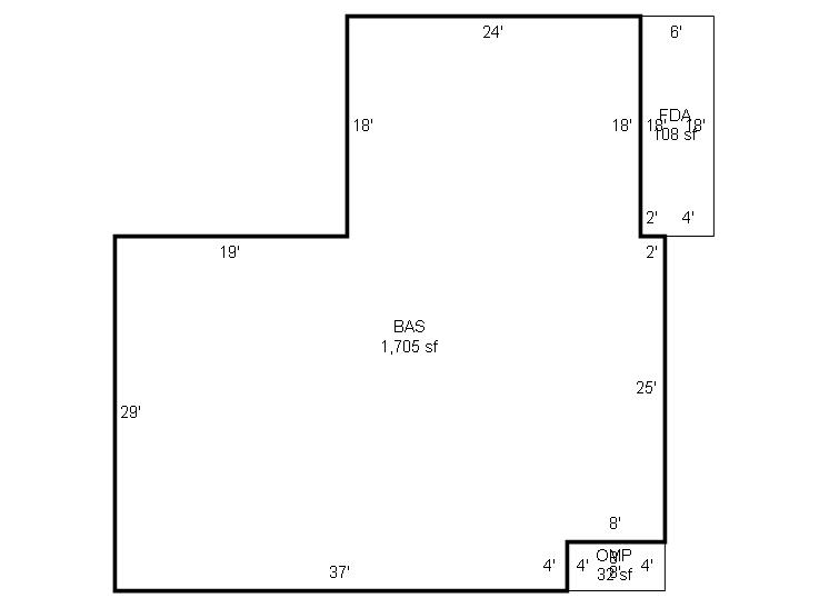
Main Body (SQFT) 1705
Year Built 1959
Additions 3
Effective Year 1987
Remodeled 0
Interior Adj.
Other Features
Building Total & Improvement Details

Grade C+5 105%
Percentage Complete 100
Total Adjusted Replacement Cost New $341,064
Physical Depreciation (% Bad) AVER 51%
Depreciated Value $167,121
Economic Depreciation (% Bad) 0
Functional Depreciation (% Bad) 0
Total Depreciated Value $167,121
Market Area Factor 1.07
Building Value $178,800
Misc Improvements Value $1,800
Total Improvement Value $180,600

Assessed Land Value $23,000
   
Assessed Total Value $203,600



Addition Summary 
StoryTypeCodeArea
1.00 OPEN MASONRY PORCH OPEN 32
1.00 FRAME DECK AVERAGE FRAM 108
1.00 BASEMENT-UNFIN-CF BASE 1705
 
Other Improvements 
UnitsDescriptionItemCodeYear% BadValue
12x12 DIMENSIONS SHED-R 2017 53 600
20x15 DIMENSIONS CPP-R 2017 32 900
8x6 DIMENSIONS SHED-R 2017 53 300
 


Building Sketch
Photograph
Building Sketch Building Photo
(Click sketch for bigger image)