Detailed Property Information

Building Summary

Data last updated on: 1/1/0001     Ownership current as of: 4/24/2026     Tax Year: 2026
REID 6817354804000

PIN # 6817-35-4804

Location Address Property Description
3228 Valley RD LO:001Y BL:3468
   
Property Owner Owner's Mailing Address
MACDONNELL, BAILEY ANNE;MACDONNELL, KEVIN THOMAS
3228 VALLEY RD
WINSTON SALEM NC 27106
Parcel
Buildings
Misc Improvements
Land
Deeds
Notes
Sales
Photos
Tax Bill
Map
Building Location Address
3228 Valley RD
Building Description
SINGLE-FAMILY
Card   of  1
Bldg Type RESIDENTIAL
Units 0
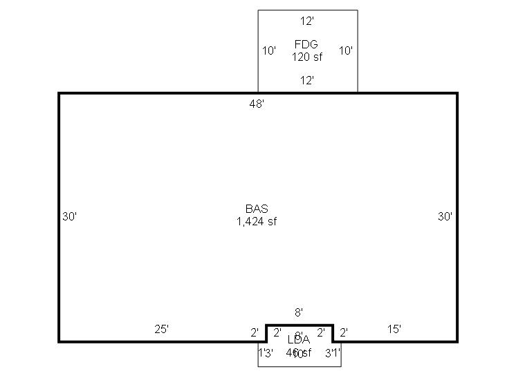
Living Area (SQFT) 1424
Number of Stories 1.00
Style SPLIT-FOYER
Foundation MASONRY
Frame FRAME
Exterior VINYL
Const Type
Heating Heat Pump
Air Cond HEAT PUMP
Plumbing Baths (Full):   2
Baths (Half):   1
Extra Fixtures:   0
Total Plumbing Fixtures:   8 
Bedrooms 3
Floor CARPET-CONCRETE
Roof Cover Asphalt Shingle
Roof Type GABLE
Main Body (SQFT) 1424
Year Built 1979
Additions 6
Effective Year 2005
Remodeled 0
Interior Adj.
Other Features
Building Total & Improvement Details

Grade C+5 105%
Percentage Complete 100
Total Adjusted Replacement Cost New $309,117
Physical Depreciation (% Bad) AVER 21%
Depreciated Value $244,202
Economic Depreciation (% Bad) 0
Functional Depreciation (% Bad) 0
Total Depreciated Value $244,202
Market Area Factor 1.05
Building Value $256,400
Misc Improvements Value
Total Improvement Value $256,400

Assessed Land Value $38,000
   
Assessed Total Value $294,400



Addition Summary 
StoryTypeCodeArea
1.00 LANDING AVERAGE LAND 46
1.00 FRAME DECK GOOD FRAM 120
1.00 FRAME DECK AVERAGE FRAM 45
1.00 BASEMENT-UNFIN-CF BASE 624
1.00 BASEMENT-FIN-AVG-R BASE 624
1.00 LANDING AVERAGE-R LAND 1
 
Other Improvements 
 


Building Sketch
Photograph
Building Sketch Building Photo
(Click sketch for bigger image)