Detailed Property Information

Building Summary

Data last updated on: 1/1/0001     Ownership current as of: 3/20/2026     Tax Year: 2026
REID 6817207428000

PIN # 6817-20-7428

Location Address Property Description
157 Woodbriar RD LO:022 BL:3524
   
Property Owner Owner's Mailing Address
JBP LLC
401 MILL STREET
WINSTON SALEM NC 27103
Parcel
Buildings
Misc Improvements
Land
Deeds
Notes
Sales
Photos
Tax Bill
Map
Building Location Address
157 Woodbriar RD
Building Description
SINGLE-FAMILY
Card   of  1
Bldg Type RESIDENTIAL
Units 0
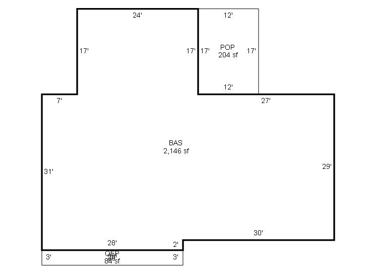
Living Area (SQFT) 2146
Number of Stories 1.00
Style SPLIT-FOYER
Foundation MASONRY
Frame MASONRY
Exterior BRICK
Const Type
Heating Forced Warm Air
Air Cond CENTRAL
Plumbing Baths (Full):   2
Baths (Half):   1
Extra Fixtures:   0
Total Plumbing Fixtures:   8 
Bedrooms 4
Floor CARPET-CONCRETE
Roof Cover Asphalt Shingle
Roof Type GABLE
Main Body (SQFT) 2146
Year Built 1970
Additions 4
Effective Year 1995
Remodeled 0
Interior Adj.
Other Features
Building Total & Improvement Details

Grade C+5 105%
Percentage Complete 100
Total Adjusted Replacement Cost New $455,751
Physical Depreciation (% Bad) AVER 36%
Depreciated Value $292,001
Economic Depreciation (% Bad) 5
Functional Depreciation (% Bad) 0
Total Depreciated Value $277,401
Market Area Factor 1.00
Building Value $277,400
Misc Improvements Value $7,500
Total Improvement Value $284,900

Assessed Land Value $46,500
   
Assessed Total Value $331,400



Addition Summary 
StoryTypeCodeArea
1.00 OPEN FRAME PORCH OPEN 84
1.00 PATIO LC PATI 204
1.00 BASEMENT-FIN-AVG-R BASE 869
1.00 BASEMENT-UNFIN-CF BASE 869
 
Other Improvements 
UnitsDescriptionItemCodeYear% BadValue
21x16 DIMENSIONS GAR/MAS/FLOOR/UNFIN-R 2014 24 7500
 


Building Sketch
Photograph
Building Sketch Building Photo
(Click sketch for bigger image)