Detailed Property Information

Building Summary

Data last updated on: 1/1/0001     Ownership current as of: 4/24/2026     Tax Year: 2026
REID 6817372591000

PIN # 6817-37-2591

Location Address Property Description
3306 Midkiff RD LO:202 BL:3597
   
Property Owner Owner's Mailing Address
ESTHER M BACON LIVING TRUST;BACON, EDWARD G TRUSTEE
3306 MIDKIFF RD
WINSTON SALEM NC 27106
Parcel
Buildings
Misc Improvements
Land
Deeds
Notes
Sales
Photos
Tax Bill
Map
Building Location Address
3306 Midkiff RD
Building Description
SINGLE-FAMILY
Card   of  1
Bldg Type RESIDENTIAL
Units 0
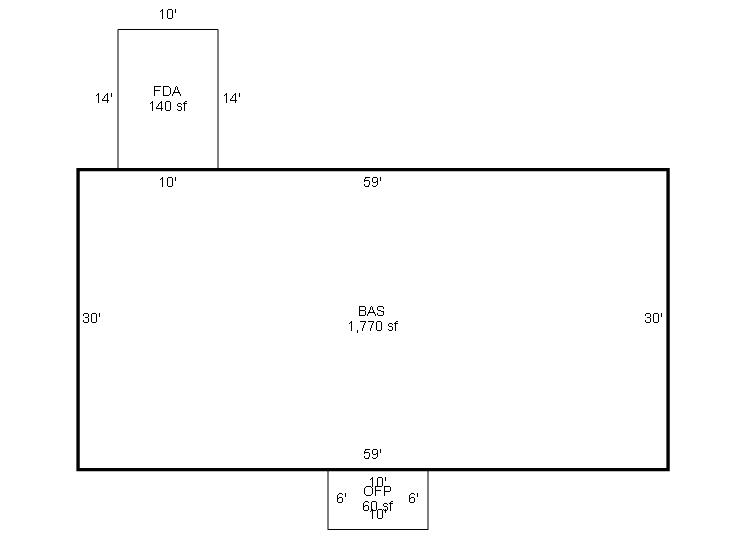
Living Area (SQFT) 1770
Number of Stories 1.00
Style RANCH
Foundation MASONRY
Frame MASONRY
Exterior BRICK
Const Type
Heating Heat Pump
Air Cond HEAT PUMP
Plumbing Baths (Full):   2
Baths (Half):   1
Extra Fixtures:   0
Total Plumbing Fixtures:   8 
Bedrooms 3
Floor CARPET-CONCRETE
Roof Cover Asphalt Shingle
Roof Type GABLE
Main Body (SQFT) 1770
Year Built 1977
Additions 5
Effective Year 2010
Remodeled 0
Interior Adj.
Other Features
Building Total & Improvement Details

Grade C+5 105%
Percentage Complete 100
Total Adjusted Replacement Cost New $392,621
Physical Depreciation (% Bad) AVER 15%
Depreciated Value $334,663
Economic Depreciation (% Bad) 0
Functional Depreciation (% Bad) 0
Total Depreciated Value $334,663
Market Area Factor 1.05
Building Value $351,400
Misc Improvements Value
Total Improvement Value $351,400

Assessed Land Value $38,000
   
Assessed Total Value $389,400



Addition Summary 
StoryTypeCodeArea
1.00 OPEN FRAME PORCH OPEN 60
1.00 FRAME DECK AVERAGE FRAM 140
1.00 BASEMENT-FIN-AVG-R BASE 442
1.00 BASEMENT-UNFIN-CF BASE 1328
1.00 ATTIC UNFINISHED ATTI 708
 
Other Improvements 
 


Building Sketch
Photograph
Building Sketch Building Photo
(Click sketch for bigger image)