Detailed Property Information

Building Summary

Data last updated on: 1/1/0001     Ownership current as of: 4/24/2026     Tax Year: 2026
REID 6817475034000

PIN # 6817-47-5034

Location Address Property Description
3239 Linda CIR LO:011 BL:3604
   
Property Owner Owner's Mailing Address
LARSEN, BETH SYLVESTER;LARSEN, WILLIAM HENRY
3239 LINDA CIR
WINSTON SALEM NC 27106
Parcel
Buildings
Misc Improvements
Land
Deeds
Notes
Sales
Photos
Tax Bill
Map
Building Location Address
3239 Linda CIR
Building Description
SINGLE-FAMILY
Card   of  1
Bldg Type RESIDENTIAL
Units 0
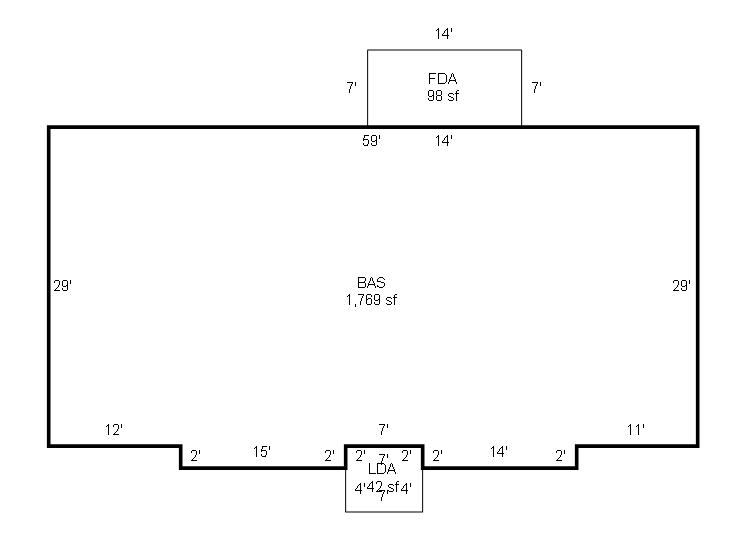
Living Area (SQFT) 1769
Number of Stories 1.00
Style RANCH
Foundation MASONRY
Frame MASONRY
Exterior BRICK
Const Type
Heating Heat Pump
Air Cond HEAT PUMP
Plumbing Baths (Full):   2
Baths (Half):   0
Extra Fixtures:   0
Total Plumbing Fixtures:   6 
Bedrooms 3
Floor CARPET-CONCRETE
Roof Cover Asphalt Shingle
Roof Type GABLE
Main Body (SQFT) 1769
Year Built 1972
Additions 5
Effective Year 2010
Remodeled 0
Interior Adj.
Other Features
Building Total & Improvement Details

Grade C+5 105%
Percentage Complete 100
Total Adjusted Replacement Cost New $351,179
Physical Depreciation (% Bad) AVER 15%
Depreciated Value $299,437
Economic Depreciation (% Bad) 0
Functional Depreciation (% Bad) 0
Total Depreciated Value $299,437
Market Area Factor 1.05
Building Value $314,400
Misc Improvements Value
Total Improvement Value $314,400

Assessed Land Value $34,200
   
Assessed Total Value $348,600



Addition Summary 
StoryTypeCodeArea
1.00 FRAME DECK AVERAGE FRAM 98
1.00 LANDING AVERAGE LAND 42
1.00 BASEMENT-FIN-LC-R BASE 300
1.00 BASEMENT-UNFIN-CF BASE 1185
1.00 LANDING AVERAGE-R LAND 1
 
Other Improvements 
 


Building Sketch
Photograph
Building Sketch Building Photo
(Click sketch for bigger image)