Detailed Property Information

Building Summary

Data last updated on: 1/1/0001     Ownership current as of: 4/3/2026     Tax Year: 2026
REID 5893783562000

PIN # 5893-78-3562

Location Address Property Description
929 Highland Glen RD LO:070 BL:3899J
   
Property Owner Owner's Mailing Address
SAUCEDO, MARCO ANTONIO
929 HIGHLAND GLEN RD
WINSTON-SALEM NC 27103
Parcel
Buildings
Misc Improvements
Land
Deeds
Notes
Sales
Photos
Tax Bill
Map
Building Location Address
929 Highland Glen RD
Building Description
SINGLE-FAMILY
Card   of  1
Bldg Type RESIDENTIAL
Units 0
Living Area (SQFT) 2461
Number of Stories 2.00
Style CONVENTIONAL
Foundation MASONRY
Frame MASONRY
Exterior BRICK
Const Type
Heating Heat Pump
Air Cond HEAT PUMP
Plumbing Baths (Full):   2
Baths (Half):   1
Extra Fixtures:   2
Total Plumbing Fixtures:   10 
Bedrooms 3
Floor CARPET-PLYWOOD
Roof Cover Asphalt Shingle
Roof Type GABLE
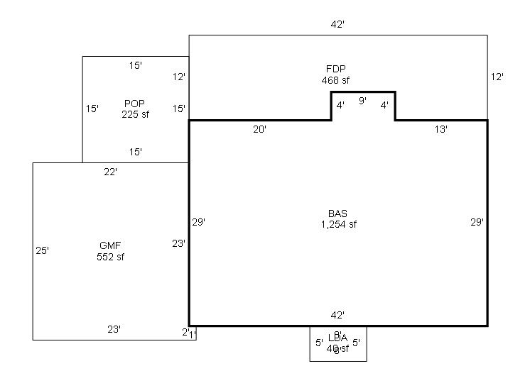
Main Body (SQFT) 1254
Year Built 1987
Additions 7
Effective Year 2005
Remodeled 0
Interior Adj.
Other Features
Building Total & Improvement Details

Grade C+5 105%
Percentage Complete 100
Total Adjusted Replacement Cost New $425,670
Physical Depreciation (% Bad) AVER 21%
Depreciated Value $336,674
Economic Depreciation (% Bad) 0
Functional Depreciation (% Bad) 0
Total Depreciated Value $336,674
Market Area Factor 1.00
Building Value $336,700
Misc Improvements Value
Total Improvement Value $336,700

Assessed Land Value $63,500
   
Assessed Total Value $400,200



Addition Summary 
StoryTypeCodeArea
1.00 LANDING AVERAGE LAND 40
1.00 FRAME DECK LC FRAM 468
1.00 PATIO LC PATI 225
1.00 GAR/MAS/FLOOR/FIN GAR/ 552
1.00 UPPER STORY FINISHED UPPE 1207
1.00 ATTIC UNFINISHED ATTI 300
1.00 LANDING AVERAGE-R LAND 1
 
Other Improvements 
 


Building Sketch
Photograph
Building Sketch Building Photo
(Click sketch for bigger image)