Detailed Property Information

Building Summary

Data last updated on: 1/1/0001     Ownership current as of: 3/20/2026     Tax Year: 2026
REID 6834871988000

PIN # 6834-87-1988

Location Address Property Description
1912 Dacian ST LO:164 BL:0933
   
Property Owner Owner's Mailing Address
ORTIZ, BRANDON;ORTIZ, SALEM
1912 DACIAN ST
WINSTON SALEM NC 27107
Parcel
Buildings
Misc Improvements
Land
Deeds
Notes
Sales
Photos
Tax Bill
Map
Building Location Address
1912 Dacian ST
Building Description
SINGLE-FAMILY
Card   of  1
Bldg Type RESIDENTIAL
Units 0
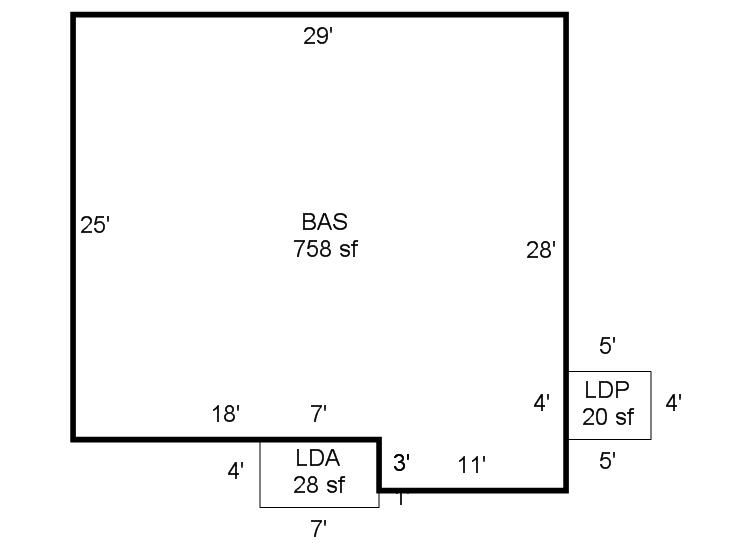
Living Area (SQFT) 758
Number of Stories 1.00
Style CONVENTIONAL
Foundation MASONRY
Frame FRAME
Exterior ASBESTOS SHINGLE
Const Type
Heating Forced Warm Air
Air Cond NONE
Plumbing Baths (Full):   1
Baths (Half):   0
Extra Fixtures:   0
Total Plumbing Fixtures:   3 
Bedrooms 2
Floor HARDWOOD
Roof Cover Asphalt Shingle
Roof Type GABLE
Main Body (SQFT) 758
Year Built 1948
Additions 4
Effective Year 1990
Remodeled 0
Interior Adj.
Other Features
Building Total & Improvement Details

Grade C-10 90%
Percentage Complete 100
Total Adjusted Replacement Cost New $109,388
Physical Depreciation (% Bad) AVER 45%
Depreciated Value $60,163
Economic Depreciation (% Bad) 0
Functional Depreciation (% Bad) 0
Total Depreciated Value $60,163
Market Area Factor 0.98
Building Value $59,000
Misc Improvements Value
Total Improvement Value $59,000

Assessed Land Value $11,500
   
Assessed Total Value $70,500



Addition Summary 
StoryTypeCodeArea
1.00 LANDING AVERAGE LAND 28
1.00 LANDING LC LAND 20
1.00 LANDING AVERAGE-R LAND 1
1.00 LANDING LC-R LAND 1
 
Other Improvements 
 


Building Sketch
Photograph
Building Sketch Building Photo
(Click sketch for bigger image)