Detailed Property Information

Building Summary

Data last updated on: 1/1/0001     Ownership current as of: 2/24/2026     Tax Year: 2026
REID 5892082118000

PIN # 5892-08-2118

Location Address Property Description
6800 Gray Moss CT LO:016 BL:4213A
   
Property Owner Owner's Mailing Address
BREWINGTON, SONYA
6800 GRAY MOSS CT
CLEMMONS NC 27012
Parcel
Buildings
Misc Improvements
Land
Deeds
Notes
Sales
Photos
Tax Bill
Map
Building Location Address
6800 Gray Moss CT
Building Description
SINGLE-FAMILY
Card   of  1
Bldg Type RESIDENTIAL
Units 0
Living Area (SQFT) 2783
Number of Stories 1.00
Style CONVENTIONAL
Foundation MASONRY
Frame MASONRY
Exterior BRICK
Const Type
Heating Forced Warm Air
Air Cond CENTRAL
Plumbing Baths (Full):   2
Baths (Half):   1
Extra Fixtures:   2
Total Plumbing Fixtures:   10 
Bedrooms 3
Floor CARPET-HARDWOOD
Roof Cover Asphalt Shingle
Roof Type HIP
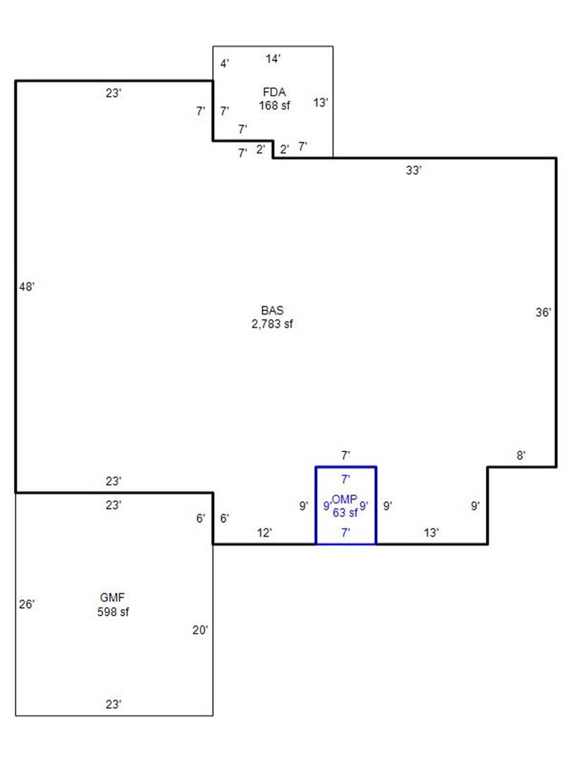
Main Body (SQFT) 2783
Year Built 1997
Additions 3
Effective Year 2005
Remodeled 0
Interior Adj.
Other Features
Building Total & Improvement Details

Grade B-10 110%
Percentage Complete 100
Total Adjusted Replacement Cost New $517,195
Physical Depreciation (% Bad) AVER 18%
Depreciated Value $424,305
Economic Depreciation (% Bad) 0
Functional Depreciation (% Bad) 0
Total Depreciated Value $424,305
Market Area Factor 1.00
Building Value $424,300
Misc Improvements Value
Total Improvement Value $424,300

Assessed Land Value $64,000
   
Assessed Total Value $488,300



Addition Summary 
StoryTypeCodeArea
1.00 GAR/MAS/FLOOR/FIN GAR/ 598
1.00 OPEN MASONRY PORCH OPEN 63
1.00 FRAME DECK AVERAGE FRAM 168
 
Other Improvements 
 


Building Sketch
Photograph
Building Sketch Building Photo
(Click sketch for bigger image)