Detailed Property Information

Building Summary

Data last updated on: 1/1/0001     Ownership current as of: 3/18/2026     Tax Year: 2026
REID 5884679712000

PIN # 5884-67-9712

Location Address Property Description
5646 Styers Ferry RD LO:014A BL:4427
   
Property Owner Owner's Mailing Address
QUINN, JESSICA;YANTZER, GREG
5646 STYERS FERRY RD
CLEMMONS NC 27012

Value subject to change, property assessment under review

Parcel
Buildings
Misc Improvements
Land
Deeds
Notes
Sales
Photos
Tax Bill
Map
Building Location Address
5646 Styers Ferry RD
Building Description
SINGLE-FAMILY
Card   of  1
Bldg Type RESIDENTIAL
Units 0
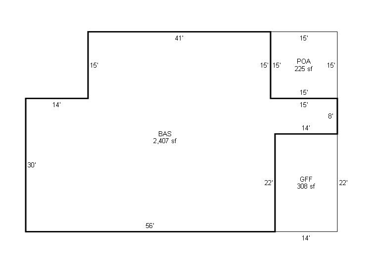
Living Area (SQFT) 2407
Number of Stories 1.00
Style CONVENTIONAL
Foundation MASONRY
Frame FRAME
Exterior BRICK
Const Type
Heating Electric Bb/Clg
Air Cond CENTRAL
Plumbing Baths (Full):   1
Baths (Half):   1
Extra Fixtures:   0
Total Plumbing Fixtures:   5 
Bedrooms 3
Floor CARPET-HARDWOOD
Roof Cover Asphalt Shingle
Roof Type HIP
Main Body (SQFT) 2407
Year Built 1953
Additions 2
Effective Year 1988
Remodeled 0
Interior Adj.
Other Features
Building Total & Improvement Details

Grade B-10 110%
Percentage Complete 100
Total Adjusted Replacement Cost New
Physical Depreciation (% Bad) AVER 41%
Depreciated Value
Economic Depreciation (% Bad) 0
Functional Depreciation (% Bad) 0
Total Depreciated Value
Market Area Factor 0.95
Building Value
Misc Improvements Value
Total Improvement Value

Assessed Land Value
   
Assessed Total Value



Addition Summary 
StoryTypeCodeArea
1.00 PATIO AVERAGE PATI 225
1.00 GAR/FRM/FLOOR/FIN GAR/ 308
 
Other Improvements 
UnitsDescriptionItemCodeYear% BadValue
23x24 DIMENSIONS GAR/FRM/FLOOR/FIN-R 1978 90
25x55 DIMENSIONS BARN-FRM-R 1953 90
 


Building Sketch
Photograph
Building Sketch Building Photo
(Click sketch for bigger image)