Detailed Property Information

Building Summary

Data last updated on: 1/1/0001     Ownership current as of: 3/17/2026     Tax Year: 2026
REID 5897641712000

PIN # 5897-64-1712

Location Address Property Description
5424 Bridal Ridge DR LO:086 BL:4634B
   
Property Owner Owner's Mailing Address
BLAKLEY, ANGELA
5424 BRIDAL RIDGE DR
PFAFFTOWN NC 27040

Value subject to change, property assessment under review

Parcel
Buildings
Misc Improvements
Land
Deeds
Notes
Sales
Photos
Tax Bill
Map
Building Location Address
5424 Bridal Ridge DR
Building Description
SINGLE-FAMILY
Card   of  1
Bldg Type RESIDENTIAL
Units 0
Living Area (SQFT) 1444
Number of Stories 2.00
Style CONVENTIONAL
Foundation SLAB
Frame FRAME
Exterior MASONITE
Const Type
Heating Heat Pump
Air Cond HEAT PUMP
Plumbing Baths (Full):   2
Baths (Half):   0
Extra Fixtures:   0
Total Plumbing Fixtures:   6 
Bedrooms 3
Floor CARPET-CONCRETE
Roof Cover Asphalt Shingle
Roof Type GABLE
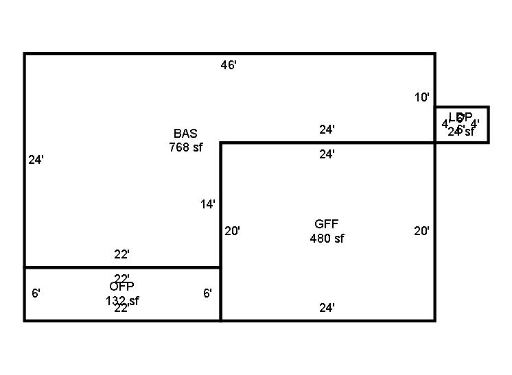
Main Body (SQFT) 768
Year Built 1986
Additions 5
Effective Year 2006
Remodeled 0
Interior Adj.
Other Features
Building Total & Improvement Details

Grade C+10 110%
Percentage Complete 100
Total Adjusted Replacement Cost New
Physical Depreciation (% Bad) AVER 20%
Depreciated Value
Economic Depreciation (% Bad) 0
Functional Depreciation (% Bad) 0
Total Depreciated Value
Market Area Factor 1.05
Building Value
Misc Improvements Value
Total Improvement Value

Assessed Land Value
   
Assessed Total Value



Addition Summary 
StoryTypeCodeArea
1.00 OPEN FRAME PORCH OPEN 132
1.00 GAR/FRM/FLOOR/FIN GAR/ 480
1.00 LANDING LC LAND 24
1.00 UPPER STORY FINISHED UPPE 676
1.00 LANDING LC-R LAND 1
 
Other Improvements 
 


Building Sketch
Photograph
Building Sketch Building Photo
(Click sketch for bigger image)